Back to results 2SLDK House in Kawagoe with Parking - ¥15.7M

Verified Listing

This property was checked recently and confirmed to still be available. Tap for details.

Verified Listing

This property has been verified in the last month. Our system regularly checks listings to ensure they are still available.

Last verified: April 30, 2026

Know someone who would love this? Gift them a subscription

¥15,700,000

1-chome Imasei, Kawagoe City, Saitama Prefecture

埼玉県川越市今成1丁目

Sign in to save properties

Work with our partners to help you search, evaluate, and purchase property in Japan.

Book a Consultation
Buy House Quiet Area

Unlock the full description with a free trial

Includes AI translation, hazard data, cost estimates & nearby amenities

3 days free · cancel anytime

Start Free Trial

Spacious Family Home in Kawagoe

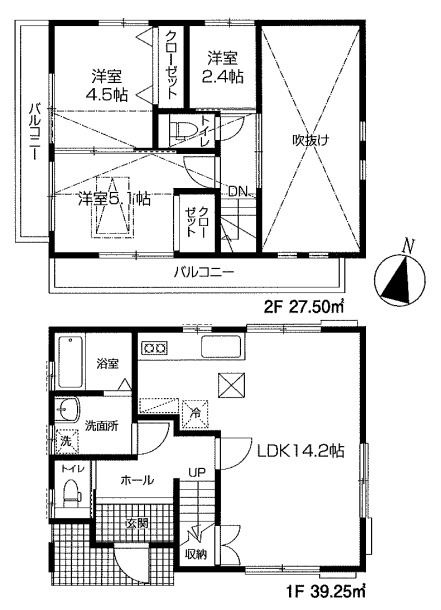
This charming two-story house in Kawagoe's Imasei district offers a comfortable 66.75 sqm living space with a 2SLDK layout, ideal for small families. Built in 2001, the property features a south-east-facing design for ample natural light, wooden construction, and parking for two compact cars.

The first floor includes a 14.2-jo (approx. 23 sqm) LDK area, while the second floor houses two bedrooms and storage. The 83.76 sqm land parcel is located in a quiet residential zone with 50% building coverage.

Kawagoe, known as "Little Edo" for its preserved traditional warehouses, lies just 30 minutes from central Tokyo. The area boasts the iconic Kawagoe Hikawa Shrine and the 400-year-old Toki no Kane bell tower - a popular photo spot 1.2km from the property. Local markets still sell sweet potato specialties, a culinary legacy from Edo-period farming.

This description was AI-generated from the original Japanese listing and may contain inaccuracies. Please verify details with the source listing.

Summary

Bedrooms: 2
Parking: 2
Year built: 2001
Land size: 84 / 902sqft
House size: 67 / 718sqft

Short-Term Rental (Minpaku)

Transport

HND

Haneda Airport — 50 km away

Nearby Konbini

Lawson Lawson — 2 min walk

Internet Connectivity

Natural Hazard Assessment

Flood Risk Low Risk
Landslide Risk Moderate
Tsunami Risk Low Risk
Earthquake Hazard Moderate

Unlock hazard data with a free trial

Flood, landslide, tsunami & earthquake risk for this property

3 days free · cancel anytime

Start Free Trial

Purchase Cost & Tax Estimates

Agent fees, acquisition tax, registration costs & annual property tax

Airbnb Revenue Estimate

Projected nightly rate, occupancy & net income for this property

Investment ROI

Annual yield, break-even timeline & 10-year return projection

Map & Street View

Map loading...

Location Accuracy Notice: Although we try to make the map accurate with coordinates or address details provided, the location data is provided by the agent. This map data should be used as reference for the surrounding area foremost.

Location Type Beds Price Land House View

* Sold properties shown for price comparison only. Prices reflect historical sale data.

Location Type Beds Rent/Month Land House View

* Rental prices shown are monthly rates. Contact property owner for current availability.