Back to results 2022 Built 5LDK House with Garden in Quiet Akita Neighborhood

Needs Verification

This listing hasn't been verified recently. Tap to request a priority check!

Know someone who would love this? Gift them a subscription

¥30,400,000

Kamikitate Saruta, Akita City, Akita Prefecture

秋田県秋田市上北手猿田字宝竜崎

Sign in to save properties

Work with our partners to help you search, evaluate, and purchase property in Japan.

Book a Consultation
Buy Garden House Quiet Area

Unlock the full description with a free trial

Includes AI translation, hazard data, cost estimates & nearby amenities

3 days free · cancel anytime

Start Free Trial

A Modern Family Home in a Quiet Akita Neighborhood

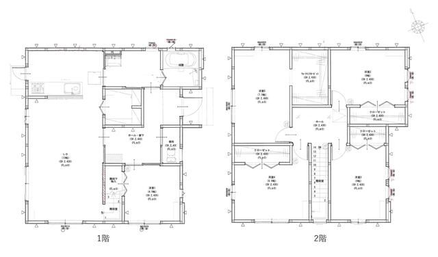
This spacious single-family home, built in February 2022, offers contemporary living in a peaceful residential area of Akita City. The property features a generous 5LDK layout with a total floor area of 124.20㎡, providing ample space for family life. The land area is a substantial 523.43㎡, offering significant outdoor potential.

The home is equipped with a comprehensive range of modern facilities. These include water supply and sewerage, air conditioning, an IH cooking heater, electricity, a warm-water washing toilet seat, and a bath over 1 tsubo in size with a re-heating function and a shampoo dresser. The kitchen is a system kitchen with a counter kitchen, and lighting fixtures are included. The property also features double-glazed windows, a garden, a walk-in closet, a dimple key, and a TV monitor intercom.

Special notes detail the road access: the property faces east onto a 7.2-meter wide public road with a frontage of 16.1 meters, and there is no designated position. Additional remarks highlight the quiet residential neighborhood and the availability of parking for two to three cars.

The property is located in the Kamikitate Saruta area of Akita City, Akita Prefecture. This region is known for its rich cultural heritage and natural beauty. An interesting local fact is that Akita is famous for its 'Namahage' demons, traditional folklore figures used in New Year's rituals to scare children into good behavior. The closest major landmark is the scenic Lake Tazawa, Japan's deepest lake, which is a popular year-round tourist destination renowned for its stunning cobalt blue waters.

This description was AI-generated from the original Japanese listing and may contain inaccuracies. Please verify details with the source listing.

Summary

Bedrooms: 5
Parking: 3
Year built: 2022
Land size: 523 / 5,634sqft
House size: 124 / 1,337sqft

Short-Term Rental (Minpaku)

Transport

CTS

New Chitose Airport — 367 km away

Nearby Konbini

Family Mart Family Mart — 7 min walk

Internet Connectivity

Natural Hazard Assessment

Flood Risk Low Risk
Landslide Risk Moderate
Tsunami Risk Low Risk
Earthquake Hazard Moderate

Unlock hazard data with a free trial

Flood, landslide, tsunami & earthquake risk for this property

3 days free · cancel anytime

Start Free Trial

Purchase Cost & Tax Estimates

Agent fees, acquisition tax, registration costs & annual property tax

Airbnb Revenue Estimate

Projected nightly rate, occupancy & net income for this property

Investment ROI

Annual yield, break-even timeline & 10-year return projection

Map & Street View

Map loading...

Location Accuracy Notice: Although we try to make the map accurate with coordinates or address details provided, the location data is provided by the agent. This map data should be used as reference for the surrounding area foremost.

Location Type Beds Price Land House View

* Sold properties shown for price comparison only. Prices reflect historical sale data.

Location Type Beds Rent/Month Land House View

* Rental prices shown are monthly rates. Contact property owner for current availability.