Back to results New 3LDK House for Sale in Yamato, Kanagawa | 2025 Build

Needs Verification

This listing hasn't been verified recently. Tap to request a priority check!

New 3LDK House for Sale in Yamato, Kanagawa | 2025 Build

Know someone who would love this? Gift them a subscription

¥31,800,000

8-chome Kamikusayanagi, Yamato City, Kanagawa Prefecture

神奈川県大和市上草柳8丁目

Sign in to save properties

Work with our partners to help you search, evaluate, and purchase property in Japan.

Book a Consultation
Buy Move-in Ready Near Station House New Build Corner Lot Gas Heating/Cooking Parking Quiet Area

Unlock the full description with a free trial

Includes AI translation, hazard data, cost estimates & nearby amenities

3 days free · cancel anytime

Start Free Trial

Newly Built Detached House in Yamato City, Kanagawa Prefecture

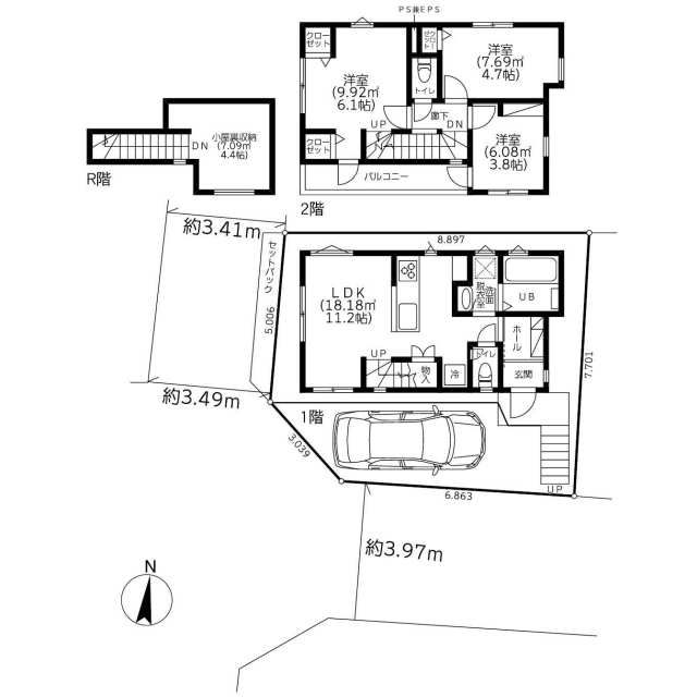
This newly constructed detached house, located in Yamato City, Kanagawa Prefecture, offers a modern living space with a completion date of November 2025. The property is situated in a quiet residential area within the First Category Low-Rise Exclusive Residential Zone, ensuring a peaceful neighborhood environment. The house features a 3LDK layout, comprising three Western-style rooms of 6.1, 4.7, and 3.8 tatami mats respectively, and a combined living, dining, and kitchen area of 11.2 tatami mats.

According to the agent's notes, the property is equipped with two toilets, both featuring bidet functions with warm water washing. The bathroom is outfitted with a drying machine and heating. The kitchen is a system kitchen complete with a dishwasher and dryer. Additional features include a garret (loft space), and utilities are connected to city gas, electricity, and public water and sewage systems. The property is on a corner lot with road frontage to the south (3.9m wide private road, 6.8m frontage) and west (3.4m wide private road, 5m frontage to a public road). It comes with a parking space. The building has been confirmed with an official construction permit (No. 24KAK建確03999) and includes defect insurance and performance evaluation guarantees. The property is currently vacant and ready for immediate occupancy.

The area of Yamato City offers convenient access to Tokyo and Yokohama while maintaining a suburban feel. An interesting local fact is that the city's name, "Yamato," is shared with the ancient name for Japan, reflecting deep historical roots. The closest major landmark is the historic Tsuruma Hachiman Shrine, a serene spot with a long history, located a short distance from the nearby Tsuruma Station.

This description was AI-generated from the original Japanese listing and may contain inaccuracies. Please verify details with the source listing.

Summary

Bedrooms: 3
Parking: 1
Year built: 2025
Land size: 64 / 691sqft
House size: 62 / 662sqft

Short-Term Rental (Minpaku)

Transport

HND

Haneda Airport — 31 km away

Nearby Konbini

Lawson Lawson — 2 min walk

Internet Connectivity

Natural Hazard Assessment

Flood Risk Low Risk
Landslide Risk Moderate
Tsunami Risk Low Risk
Earthquake Hazard Moderate

Unlock hazard data with a free trial

Flood, landslide, tsunami & earthquake risk for this property

3 days free · cancel anytime

Start Free Trial

Purchase Cost & Tax Estimates

Agent fees, acquisition tax, registration costs & annual property tax

Airbnb Revenue Estimate

Projected nightly rate, occupancy & net income for this property

Investment ROI

Annual yield, break-even timeline & 10-year return projection

Map & Street View

Map loading...

Location Accuracy Notice: Although we try to make the map accurate with coordinates or address details provided, the location data is provided by the agent. This map data should be used as reference for the surrounding area foremost.

Location Type Beds Price Land House View

* Sold properties shown for price comparison only. Prices reflect historical sale data.

Location Type Beds Rent/Month Land House View

* Rental prices shown are monthly rates. Contact property owner for current availability.