Back to results Renovated Marine Plaza Nissei Apartment with Bay Views

Needs Verification

This listing hasn't been verified recently. Tap to request a priority check!

¥15,000,000

641-27 Nissei, Nisseicho, Bizen City, Okayama Prefecture

岡山県備前市日生町日生641-27

Buy Apartment Renovated

Know someone who would love this? Gift them a subscription

This property has more to show

Earthquake & flood hazard assessment
Purchase cost & tax estimates
Full AI-translated description

Trusted by property buyers worldwide

Start 3-Day Free Trial

$5/month after trial · Cancel anytime

Marine Plaza Nissei First Stage 8th Floor

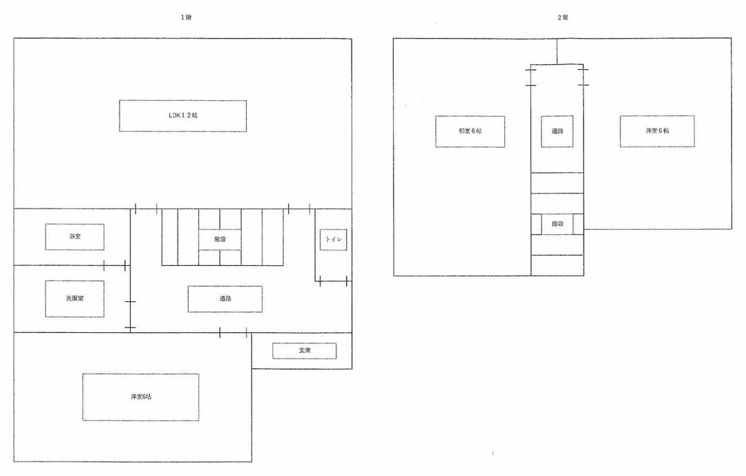
This renovated apartment in Marine Plaza Nissei First Stage offers a comfortable living space with a prime location overlooking the scenic Nissei Bay. The property has undergone a comprehensive interior renovation, including the replacement of the kitchen, toilet, washbasin, and bathroom unit. The wallpaper has been replaced in all rooms, and the flooring has been renewed throughout.

The current status of the property is vacant. If you are interested in viewing the property in person, you are encouraged to freely contact the agent to discuss your preferred date for a free viewing. The renovation work was carried out by the construction company Kumagai Gumi Co., Ltd.

The apartment features a new kitchen, a new unit bath, and a new toilet. The water heater has also been replaced with a new unit. The closet doors have been exchanged, and the wall foundations have been reinforced, making it possible to install a wall-mounted television. The balcony provides a sweeping view of Nissei Bay, and annually on August 13th, a fireworks display is launched directly in front of the building, offering a spectacular private show.

The surrounding area of Bizen City in Okayama Prefecture is known for its coastal charm. A notable local landmark is the Bizen Osafune Japanese Sword Museum, which celebrates the region's historic sword-making tradition. The property is conveniently located just a 10-minute walk from JR Nissei Station on the Ako Line.

This description was AI-generated from the original Japanese listing and may contain inaccuracies. Please verify details with the source listing.

Summary

Bedrooms: 1
Parking: 1
Year built: 1995
Land size: 950 / 10,230sqft
House size: 52 / 564sqft
Balcony size: 9 / 97sqft

Short-Term Rental (Minpaku)

Transport

KIX

Kansai International Airport — 95 km away

Nearby Konbini

Seven Eleven Seven Eleven — 40 min walk

Internet Connectivity

Natural Hazard Assessment

Hazard data is a subscriber feature

Know the flood, landslide & tsunami risks before you buy

View Plans
¥15,000,000
Purchase Cost & Tax Estimates
Subscribe
Agent fee (3% + tax)¥000,000
Acquisition tax¥000,000
Registration & stamp¥000,000
Property tax (annual)¥00,000/yr
Subscribe to view cost & tax estimates →
Nightly Rate
Occupancy Rate
Max operating days/year
Est. booked nights/year
Gross annual revenue
Expenses breakdown
Cleaning
Platform fees (3%)
Management (20%)
Supplies
Insurance
Utilities
Total expenses
Net annual income
Monthly equivalent

Actual revenue varies by location, property quality, season, and management. Adjust sliders to model different scenarios.

Renovation Budget
Annual Rental Income

Auto-filled from Airbnb estimate

Purchase price
Renovation
Transaction costs
Total investment
Property tax
Insurance
Maintenance
Annual yield
Break-even
5-year return
10-year return
0 yr5101520+

Estimates only. Actual returns depend on rental demand, management quality, renovation scope, and market conditions. Adjust sliders to model scenarios.

641-27 Nissei, Nisseicho, Bizen City, Okayama Prefecture

岡山県備前市日生町日生641-27

Get Started

Sign in to save properties

Map & Street View

Map loading...

Location Accuracy Notice: Although we try to make the map accurate with coordinates or address details provided, the location data is provided by the agent. This map data should be used as reference for the surrounding area foremost.

Location Type Beds Price Land House View

* Sold properties shown for price comparison only. Prices reflect historical sale data.

Location Type Beds Rent/Month Land House View

* Rental prices shown are monthly rates. Contact property owner for current availability.