Back to results New 4LDK House in Kōnan, Aichi | 2024 Build Near Kōnan Station

Verified Listing

This property was checked recently and confirmed to still be available. Tap for details.

Verified Listing

This property has been verified in the last month. Our system regularly checks listings to ensure they are still available.

Last verified: April 12, 2026

Know someone who would love this? Gift them a subscription

¥39,900,000

Akadojicho Goshuku, Kōnan City, Aichi Prefecture

愛知県江南市赤童子町御宿

Sign in to save properties

Work with our partners to help you search, evaluate, and purchase property in Japan.

Book a Consultation
Buy Move-in Ready Near Station House New Build Suburban Quiet Area

Unlock the full description with a free trial

Includes AI translation, hazard data, cost estimates & nearby amenities

3 days free · cancel anytime

Start Free Trial

Modern Detached House in Kōnan City, Aichi Prefecture

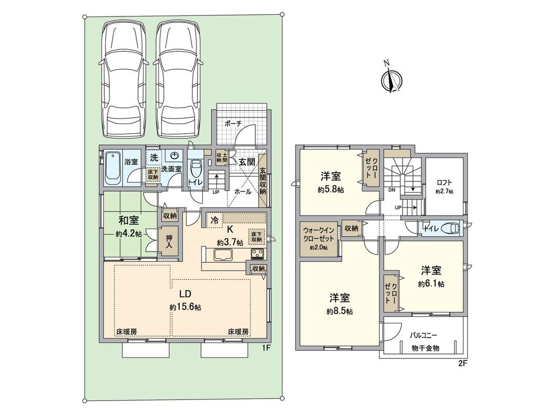
This newly constructed detached house, built in October 2024, is located in the Akadōji-cho district of Kōnan City, Aichi Prefecture. The property is situated within a designated Category I Low-Rise Residential Zone, ensuring a quiet living environment. It offers convenient access to transportation, being a 10-minute walk from the Meitetsu Inuyama Line's Kōnan Station.

The house features a 4LDK layout with a total floor area of 107.82 sqm (approximately 32.61 tsubo). The land area is 139.31 sqm (approximately 42.14 tsubo). The property is built using the 2x4 construction method and incorporates seismic dampers for enhanced earthquake resistance. The living, dining, and kitchen area (LDK) is spacious at approximately 19.5 tatami mats and includes a face-to-face kitchen layout with a dishwasher. The home is equipped with numerous amenities including underfloor heating in the LDK, a bathroom with a drying function, a TOTO Premist toilet, an EV outlet, Low-E double-glazed resin sash windows, a pocket key system at the entrance, and a home security system (fee-based).

Storage is abundant throughout the house, with closets in the living room, corridors on both the first and second floors, a walk-in closet on the second floor, and an earthen floor storage area at the entrance, which also features a high ceiling. A loft space is also available on the second floor. The property allows for parallel parking for two vehicles (subject to vehicle type). The front road has a width of over 6 meters. The property is currently vacant, and the handover date is negotiable.

The neighborhood provides daily conveniences, with a FamilyMart convenience store a 5-minute walk away, a supermarket (Heiwa-dō Kōnan Store) within a 17-minute walk, and Natsume Park an 8-minute walk away. The local elementary school, Kochino Minami Elementary School, is also an 8-minute walk from the property.

This description was AI-generated from the original Japanese listing and may contain inaccuracies. Please verify details with the source listing.

Summary

Bedrooms: 4
Parking: 2
Year built: 2024
Land size: 139 / 1,500sqft
House size: 108 / 1,161sqft

Short-Term Rental (Minpaku)

Transport

Nearest Konbini

sunkus Sunkus — 6 min walk

Internet Connectivity

Natural Hazard Assessment

Flood Risk Low Risk
Landslide Risk Moderate
Tsunami Risk Low Risk
Earthquake Hazard Moderate

Unlock hazard data with a free trial

Flood, landslide, tsunami & earthquake risk for this property

3 days free · cancel anytime

Start Free Trial

Purchase Cost & Tax Estimates

Agent fees, acquisition tax, registration costs & annual property tax

Airbnb Revenue Estimate

Projected nightly rate, occupancy & net income for this property

Investment ROI

Annual yield, break-even timeline & 10-year return projection

Map & Street View

Map loading...

Location Accuracy Notice: Although we try to make the map accurate with coordinates or address details provided, the location data is provided by the agent. This map data should be used as reference for the surrounding area foremost.

Location Type Beds Price Land House View

* Sold properties shown for price comparison only. Prices reflect historical sale data.

Location Type Beds Rent/Month Land House View

* Rental prices shown are monthly rates. Contact property owner for current availability.