Back to results White Villa Hibiya: Investment Property in Meguro, Tokyo

Verified Listing

This property was checked recently and confirmed to still be available. Tap for details.

Verified Listing

This property has been verified in the last month. Our system regularly checks listings to ensure they are still available.

Last verified: April 8, 2026

Know someone who would love this? Gift them a subscription

¥350,000,000

5-chome Hibiya, Meguro Ward, Tokyo

東京都目黒区碑文谷5丁目

Sign in to save properties

Work with our partners to help you search, evaluate, and purchase property in Japan.

Book a Consultation
Buy Business Guesthouse Potential House Corner Lot Parking Suburban Quiet Area

Unlock the full description with a free trial

Includes AI translation, hazard data, cost estimates & nearby amenities

3 days free · cancel anytime

Start Free Trial

White Villa Hibiya: An Investment Property in Meguro

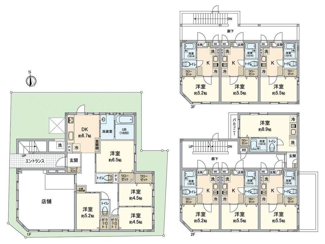
White Villa Hibiya is a multi-unit residential building located in a quiet, low-rise residential zone in Meguro Ward, Tokyo. The property, built in April 2015, is a three-story wooden structure with a total building area of 282.02 sqm (approximately 85.31 tsubo) on a 183.7 sqm (approximately 55.56 tsubo) corner lot. The south-west facing corner location provides excellent sunlight and ventilation.

The property is configured as a mixed-use rental building with a total of eight units. The layout consists of six 1K units, one 1R unit, and one 4DK unit combined with a shop space. The owner-occupied portion (the 4DK + shop) is available for personal use. One parking space is available, subject to vehicle type restrictions.

Access is convenient, with Gakugei-daigaku Station on the Tokyu Toyoko Line a 10-minute walk away, and Toritsu-daigaku Station a 12-minute walk. Daily amenities are within easy reach, including a supermarket within a 6-minute walk (Ozeki Hibiya store) and a convenience store (Seven-Eleven) within a 3-minute walk.

As an investment, the property has an assumed annual rental income of 14,352,000 yen (based on full occupancy) against the asking price of 350,000,000 yen, yielding a projected return of 4.1%. Important agent notes clarify these figures: "The yield is the ratio of annual rental income (including common area fees, etc.) to the sales price, before deducting public charges and other expenses necessary to maintain the property. The assumed rent and assumed yield are calculated based on market rent, adding rent for vacant units and assuming full occupancy. Rental income is not guaranteed to be reliably obtained in the future. (Survey date: -)". A further note states, "The annual projected rent is the assumed rent for the entire building."

This description was AI-generated from the original Japanese listing and may contain inaccuracies. Please verify details with the source listing.

Summary

Parking: 1
Year built: 2015
Land size: 184 / 1,977sqft
House size: 282 / 3,036sqft

Short-Term Rental (Minpaku)

Transport

HND

Haneda Airport — 12 km away

Nearest Konbini

sunkus Sunkus — 3 min walk

Internet Connectivity

Natural Hazard Assessment

Flood Risk Low Risk
Landslide Risk Moderate
Tsunami Risk Low Risk
Earthquake Hazard Moderate

Unlock hazard data with a free trial

Flood, landslide, tsunami & earthquake risk for this property

3 days free · cancel anytime

Start Free Trial

Purchase Cost & Tax Estimates

Agent fees, acquisition tax, registration costs & annual property tax

Airbnb Revenue Estimate

Projected nightly rate, occupancy & net income for this property

Investment ROI

Annual yield, break-even timeline & 10-year return projection

Map & Street View

Map loading...

Location Accuracy Notice: Although we try to make the map accurate with coordinates or address details provided, the location data is provided by the agent. This map data should be used as reference for the surrounding area foremost.

Location Type Beds Price Land House View

* Sold properties shown for price comparison only. Prices reflect historical sale data.

Location Type Beds Rent/Month Land House View

* Rental prices shown are monthly rates. Contact property owner for current availability.