Back to results 6DK Detached House for Sale in Minobu, Yamanashi with Large Garden

Needs Verification

This listing hasn't been verified recently. Tap to request a priority check!

Know someone who would love this? Gift them a subscription

¥2,800,000

Shimotawara, Minobu, Minamikoma District, Yamanashi Prefecture

山梨県南巨摩郡身延町下田原

Sign in to save properties

Work with our partners to help you search, evaluate, and purchase property in Japan.

Book a Consultation
Buy Garden House Quiet Area Temple Nearby

Unlock the full description with a free trial

Includes AI translation, hazard data, cost estimates & nearby amenities

3 days free · cancel anytime

Start Free Trial

Spacious 6DK Family Home with Large Land in Minobu, Yamanashi

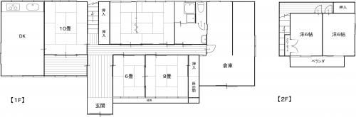
This substantial property, listed as NO.193 on the Minobu Town Akiya Bank, offers a rare opportunity to acquire a detached home with generous living space and a significant plot of land. Built in January 1973, the wooden structure provides a total floor area of 106.84 square meters across a 6DK layout, ensuring ample room for family life. The land itself is a notable 686.47 square meters, providing extensive outdoor potential.

The home is well-equipped for modern, comfortable living. Key facilities include an IH cooking heater for safe, flame-free cooking, a bathroom with a window for ventilation, and a separate bath and toilet. All living rooms are spacious, each over 6 tatami mats in size. Additional amenities include a balcony, a dedicated private garden, a veranda (engawa), an independent washroom, indoor space for a washing machine, air conditioning, and parking for bicycles and motorcycles. Utilities are fully connected with electricity, water supply, and sewerage.

As a registered property on the Minobu Town Akiya Bank, prospective buyers must first complete the town's vacant house bank user registration to receive detailed property information and proceed with inquiries. The download for the required application documents and an explanation of the usage process is available via the provided town website link.

Located in the quiet residential area of Shimotawara in Minobu Town, Yamanashi Prefecture, the property enjoys a south-facing orientation in a corner lot. The area is part of the scenic Minobu region, known for its deep connections to Japanese Buddhism. A major landmark nearby is the historic Kuon-ji Temple, the head temple of the Nichiren Shu sect of Buddhism, located in central Minobu, which attracts visitors and pilgrims year-round.

This description was AI-generated from the original Japanese listing and may contain inaccuracies. Please verify details with the source listing.

Summary

Bedrooms: 6
Parking: 2
Year built: 1973
Land size: 686 / 7,389sqft
House size: 107 / 1,150sqft

Short-Term Rental (Minpaku)

Transport

HND

Haneda Airport — 121 km away

Nearby Konbini

Seven Eleven Seven Eleven — 18 min walk

Internet Connectivity

Natural Hazard Assessment

Flood Risk Low Risk
Landslide Risk Moderate
Tsunami Risk Low Risk
Earthquake Hazard Moderate

Unlock hazard data with a free trial

Flood, landslide, tsunami & earthquake risk for this property

3 days free · cancel anytime

Start Free Trial

Purchase Cost & Tax Estimates

Agent fees, acquisition tax, registration costs & annual property tax

Airbnb Revenue Estimate

Projected nightly rate, occupancy & net income for this property

Investment ROI

Annual yield, break-even timeline & 10-year return projection

Map & Street View

Map loading...

Location Accuracy Notice: Although we try to make the map accurate with coordinates or address details provided, the location data is provided by the agent. This map data should be used as reference for the surrounding area foremost.

Location Type Beds Price Land House View

* Sold properties shown for price comparison only. Prices reflect historical sale data.

Location Type Beds Rent/Month Land House View

* Rental prices shown are monthly rates. Contact property owner for current availability.