Back to results 9SLDK House with Workshop in Nagoya Midori Ward | 313.68 sqm

Needs Verification

This listing hasn't been verified recently. Tap to request a priority check!

Know someone who would love this? Gift them a subscription

¥45,766,000

Fujizuka 2-chome, Midori Ward, Nagoya City, Aichi Prefecture

愛知県名古屋市緑区藤塚2丁目

Sign in to save properties

Work with our partners to help you search, evaluate, and purchase property in Japan.

Book a Consultation
Buy House Duplex Parking Workshop Ghibli Park

Unlock the full description with a free trial

Includes AI translation, hazard data, cost estimates & nearby amenities

3 days free · cancel anytime

Start Free Trial

Spacious Multi-Generational Home with Workshop in Nagoya's Midori Ward

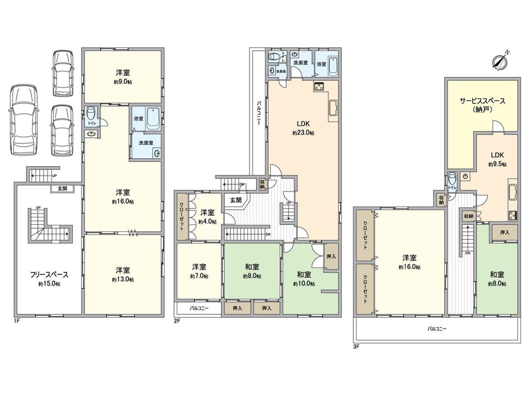
This substantial property in Fujizuka 2-chome, Midori Ward, Nagoya, presents a rare opportunity to acquire a large, versatile home designed for multi-generational living. The 3-story steel-framed house, built in January 1991, offers an expansive total floor area of 313.68 square meters (approx. 94.88 tsubo) on a generous 216.15 square meter (approx. 65.38 tsubo) plot of land. The layout is exceptionally flexible, officially described as 9SLDK, but the agent's special notes clarify that the original and more accurate layout is "4LDK + 2SLDK + 3 rooms + free space." This includes a practical workshop/warehouse space measuring 123.66 square meters, which is already incorporated into the stated total building area.

The home's features are comprehensive. It is configured as a two-family residence, with living, dining, kitchen, washroom, and bath facilities conveniently located on both the 2nd and 3rd floors, and toilets on all three levels. The first floor boasts a versatile free space of approximately 15.0 tatami mats, ideal for work or storage. The second floor features a spacious 23.0-tatami mat LDK that connects to a west-facing balcony, alongside two Japanese-style rooms of 8.0 tatami mats or more, complete with closets. The third floor includes an LDK of about 9.5 tatami mats adjacent to a large service space (storage room), with both a Western-style room (approx. 16.0 tatami) and a Japanese-style room (approx. 8.0 tatami) offering access to a southeast-facing balcony. Parking is available for up to three vehicles (subject to vehicle type).

The location in Fujizuka is highly convenient for daily life. Supermarket Konomiya Kami-no-Kura store is a mere 4-minute walk (280m) away, with House Plaza Shiratsuchi and a variety of convenience stores, drugstores, and the post office all within a 5-minute walking radius. The property is served by public transport, with a 7-minute bus ride from Tokushige Station on the Nagoya Municipal Subway Sakura-dori Line to the Akamatsu stop, followed by a 4-minute walk. For those who prefer to walk, Tokushige Station itself is about a 25-minute walk. Regarding local schools, the agent's remarks note that for details on designated school routes, confirmation should be made directly with the respective schools or the board of education.

The surrounding Midori Ward area offers a blend of residential comfort and accessibility to Nagoya's wider amenities. An interesting local fact is that the ward is home to the sprawling Tokushige Garden City development, a large-scale planned community. For recreation and culture, residents can easily visit the popular Hills Walk Tokushige Gardens shopping and leisure complex, approximately a 25-minute walk or a short drive away, offering a wide range of shops, restaurants, and entertainment options.

This description was AI-generated from the original Japanese listing and may contain inaccuracies. Please verify details with the source listing.

Summary

Bedrooms: 9
Parking: 3
Year built: 1991
Land size: 216 / 2,327sqft
House size: 314 / 3,376sqft

Short-Term Rental (Minpaku)

Transport

Nearby Konbini

Seven Eleven Seven Eleven — 3 min walk

Internet Connectivity

Natural Hazard Assessment

Flood Risk Low Risk
Landslide Risk Moderate
Tsunami Risk Low Risk
Earthquake Hazard Moderate

Unlock hazard data with a free trial

Flood, landslide, tsunami & earthquake risk for this property

3 days free · cancel anytime

Start Free Trial

Purchase Cost & Tax Estimates

Agent fees, acquisition tax, registration costs & annual property tax

Airbnb Revenue Estimate

Projected nightly rate, occupancy & net income for this property

Investment ROI

Annual yield, break-even timeline & 10-year return projection

Map & Street View

Map loading...

Location Accuracy Notice: Although we try to make the map accurate with coordinates or address details provided, the location data is provided by the agent. This map data should be used as reference for the surrounding area foremost.

Location Type Beds Price Land House View

* Sold properties shown for price comparison only. Prices reflect historical sale data.

Location Type Beds Rent/Month Land House View

* Rental prices shown are monthly rates. Contact property owner for current availability.