Back to results 3LDK Terraced House in Nakagusuku Village with Rental Income

Verified Listing

This property was checked recently and confirmed to still be available. Tap for details.

Verified Listing

This property has been verified in the last month. Our system regularly checks listings to ensure they are still available.

Last verified: April 21, 2026

Know someone who would love this? Gift them a subscription

¥44,020,000

Arakaki, Nakagusuku Village, Okinawa Prefecture

沖縄県中城村新垣

Sign in to save properties

Work with our partners to help you search, evaluate, and purchase property in Japan.

Book a Consultation
Buy House Quiet Area

Unlock the full description with a free trial

Includes AI translation, hazard data, cost estimates & nearby amenities

3 days free · cancel anytime

Start Free Trial

A Modern Home in Nakagusuku Village

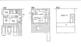
This 2018-built terraced house offers contemporary living in the quiet residential neighborhood of Arakaki, Nakagusuku Village. The property features a 3LDK layout with approximately 112.4 square meters of living space spread across three floors. Currently generating rental income, this home presents an investment opportunity with 4.3% yield potential through a fixed-term lease agreement that allows for future personal use.

The Nakagusuku area is rich in Ryukyuan history, with the village name literally meaning "Middle Castle" reflecting its central position in the former Ryukyu Kingdom. The closest major landmark is Nakagusuku Castle, a UNESCO World Heritage site featuring impressive Gusuku-period stone walls overlooking the East China Sea. This historical fortress offers panoramic coastal views and represents one of Okinawa's best-preserved castle ruins.

This description was AI-generated from the original Japanese listing and may contain inaccuracies. Please verify details with the source listing.

Summary

Bedrooms: 3
Parking: 3
Year built: 2018
Land size: 190 / 2,043sqft
House size: 112 / 1,210sqft

Short-Term Rental (Minpaku)

Transport

OKA

Naha Airport — 16 km away

Nearby Konbini

Family Mart Family Mart — 8 min walk

Internet Connectivity

Natural Hazard Assessment

Flood Risk Low Risk
Landslide Risk Moderate
Tsunami Risk Low Risk
Earthquake Hazard Moderate

Unlock hazard data with a free trial

Flood, landslide, tsunami & earthquake risk for this property

3 days free · cancel anytime

Start Free Trial

Purchase Cost & Tax Estimates

Agent fees, acquisition tax, registration costs & annual property tax

Airbnb Revenue Estimate

Projected nightly rate, occupancy & net income for this property

Investment ROI

Annual yield, break-even timeline & 10-year return projection

Map & Street View

Map loading...

Location Accuracy Notice: Although we try to make the map accurate with coordinates or address details provided, the location data is provided by the agent. This map data should be used as reference for the surrounding area foremost.

Location Type Beds Price Land House View

* Sold properties shown for price comparison only. Prices reflect historical sale data.

Location Type Beds Rent/Month Land House View

* Rental prices shown are monthly rates. Contact property owner for current availability.