Back to results New 3LDK Apartment in Chatan, Okinawa - Bears Court The Grand

Verified Listing

This property was checked recently and confirmed to still be available. Tap for details.

Verified Listing

This property has been verified in the last month. Our system regularly checks listings to ensure they are still available.

Last verified: April 7, 2026

Know someone who would love this? Gift them a subscription

¥63,980,000

2-chome Ihei, Chatan Town, Okinawa Prefecture

沖縄県北谷町伊平2丁目

Sign in to save properties

Work with our partners to help you search, evaluate, and purchase property in Japan.

Book a Consultation
Buy Move-in Ready Apartment New Build Gas Heating/Cooking Pet Friendly Parking Reinforced Concrete

Unlock the full description with a free trial

Includes AI translation, hazard data, cost estimates & nearby amenities

3 days free · cancel anytime

Start Free Trial

Bears Court The Grand Chatan Ihei F-208: A New Build Apartment in Okinawa

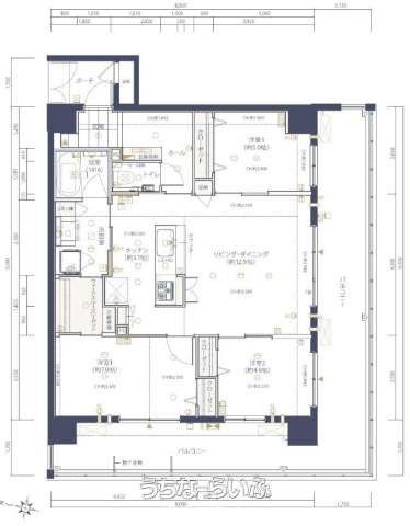
This property is a new construction apartment unit located in the Bears Court The Grand building in Ihei, Chatan Town, Okinawa Prefecture. The unit is priced at 63,980,000 yen and offers a spacious 76 square meter (22.99 tsubo) floor area with a 3LDK layout. The building is a 6-story reinforced concrete (RC) structure, and this particular unit is on the 2nd floor. The building features an elevator, an auto-lock security system, a parcel delivery box, and a total of 52 units.

The apartment's equipment and facilities include an indoor washing machine space, all Western-style rooms, and barrier-free design. Special notes from the agent mention a walk-in closet, lighting in all rooms, and a gas dryer. The kitchen is equipped with a water purifier, a gas cooktop with three or more burners, a system kitchen, and a counter-style kitchen. The bathroom and toilet are separate, featuring a unit bath, bathtub, independent washroom, bathroom dryer, and a warm-water washing toilet seat. Security features include an intercom, security cameras, and a TV phone (intercom with TV monitor). Other storage includes a shoe box. The building uses propane gas.

The property is pet-friendly, though some restrictions apply. The monthly fees include a 10,400 yen management fee and a 7,600 yen repair reserve fund. Parking is available for one car at 6,000 yen per month, with a second space also available for 6,000 yen. The balcony measures 33.2 square meters (10.04 tsubo). The planned handover date is February 2027. The location offers convenient access, with the Ihei bus stop approximately a 4-minute walk away.

This description was AI-generated from the original Japanese listing and may contain inaccuracies. Please verify details with the source listing.

Summary

Bedrooms: 3
Parking: 1
Year built: 2027
Land size: 2,075 / 22,335sqft
House size: 76 / 818sqft
Balcony size: 33 / 355sqft

Short-Term Rental (Minpaku)

Transport

OKA

Naha Airport — 5 km away

Nearby Konbini

Family Mart Family Mart — 2 min walk

Internet Connectivity

Natural Hazard Assessment

Flood Risk Low Risk
Landslide Risk Moderate
Tsunami Risk Low Risk
Earthquake Hazard Moderate

Unlock hazard data with a free trial

Flood, landslide, tsunami & earthquake risk for this property

3 days free · cancel anytime

Start Free Trial

Purchase Cost & Tax Estimates

Agent fees, acquisition tax, registration costs & annual property tax

Airbnb Revenue Estimate

Projected nightly rate, occupancy & net income for this property

Investment ROI

Annual yield, break-even timeline & 10-year return projection

Map & Street View

Map loading...

Location Accuracy Notice: Although we try to make the map accurate with coordinates or address details provided, the location data is provided by the agent. This map data should be used as reference for the surrounding area foremost.

Location Type Beds Price Land House View

* Sold properties shown for price comparison only. Prices reflect historical sale data.

Location Type Beds Rent/Month Land House View

* Rental prices shown are monthly rates. Contact property owner for current availability.