Back to results 2010 2DK Single-Story House with Large Garden in Fuso, Aichi

Needs Verification

This listing hasn't been verified recently. Tap to request a priority check!

Know someone who would love this? Gift them a subscription

¥12,380,000

Fuso Town, Niwa District, Aichi Prefecture

愛知県丹羽郡扶桑町大字高雄字北郷

Sign in to save properties

Work with our partners to help you search, evaluate, and purchase property in Japan.

Book a Consultation
Buy Move-in Ready Garden Near Station House Akiya Bank Large Garden Rural

Unlock the full description with a free trial

Includes AI translation, hazard data, cost estimates & nearby amenities

3 days free · cancel anytime

Start Free Trial

Spacious Single-Story Home with Generous Land in Fuso Town

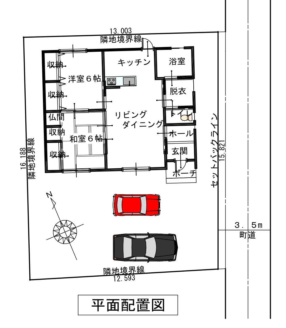
This detached house, built in August 2010, offers a comfortable 2DK layout within a 65.42㎡ (approximately 19.78 tsubo) living space. The property's most significant feature is its expansive land plot, measuring 212.59㎡ (approximately 64.3 tsubo), providing ample outdoor space including a garden. The structure is a single-story wooden house with a floor area ratio of 60% and a building coverage ratio of 200%. The property is currently vacant and ready for immediate occupancy.

According to the agent's notes, the property is located in an area with no specified land use zoning. The land rights are ownership, and the land classification is residential. The property is situated within an Urban Planning Adjustment Area. The agent also notes that the floor plan diagram should be considered secondary to the actual current condition of the property.

Fuso Town in Aichi Prefecture offers a blend of residential calm and accessibility. The property is conveniently located just an 8-minute walk from Kizuyosui Station on the Meitetsu Inuyama Line, providing easy access to the wider region. An interesting local fact is that the town's name, "Fuso," is an old poetic name for Japan, reflecting a deep cultural heritage. The area is also within easy reach of the historic and scenic Inuyama City, famous for Inuyama Castle, one of Japan's oldest original castles and a designated National Treasure.

This description was AI-generated from the original Japanese listing and may contain inaccuracies. Please verify details with the source listing.

Summary

Bedrooms: 2
Parking: 1
Year built: 2010
Land size: 213 / 2,288sqft
House size: 65 / 704sqft

Short-Term Rental (Minpaku)

Transport

Nearest Konbini

sunkus Sunkus — 7 min walk

Internet Connectivity

Natural Hazard Assessment

Flood Risk Low Risk
Landslide Risk Moderate
Tsunami Risk Low Risk
Earthquake Hazard Moderate

Unlock hazard data with a free trial

Flood, landslide, tsunami & earthquake risk for this property

3 days free · cancel anytime

Start Free Trial

Purchase Cost & Tax Estimates

Agent fees, acquisition tax, registration costs & annual property tax

Airbnb Revenue Estimate

Projected nightly rate, occupancy & net income for this property

Investment ROI

Annual yield, break-even timeline & 10-year return projection

Map & Street View

Map loading...

Location Accuracy Notice: Although we try to make the map accurate with coordinates or address details provided, the location data is provided by the agent. This map data should be used as reference for the surrounding area foremost.

Location Type Beds Price Land House View

* Sold properties shown for price comparison only. Prices reflect historical sale data.

Location Type Beds Rent/Month Land House View

* Rental prices shown are monthly rates. Contact property owner for current availability.