Hikari Properties for Sale | Akiya Japan

Browse thousands of properties for sale in Hikari. From affordable akiya starting at under ¥1,000,000 to modern homes across Japan's 47 prefectures.

Updated daily 47 prefectures Est. 2020
0 filters active

Want alerts for this search? Subscribers get email alerts when new matching properties are listed. View plans

New this week Under ¥5M Free / Near-Free Akiya Banks Traditional / Kominka

Hikari, Yamaguchi Prefecture

Buy House Move-in Ready Garden +2
3
100m²
seven_eleven convenience store Seven Eleven - 9 min walk / 2 min drive

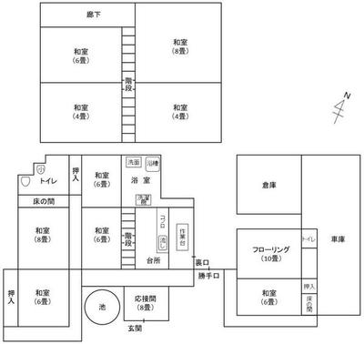
Hikari, Yamaguchi Prefecture

Buy House Traditional House Farmhouse +7
541m²
267m²
seven_eleven convenience store Seven Eleven - 47 min walk / 9 min drive
Loading properties...