Isahaya Properties | Akiya Japan

Browse thousands of properties for sale in Isahaya. From affordable akiya starting at under ¥1,000,000 to modern homes across Japan's 47 prefectures.

Updated daily 47 prefectures Est. 2020
0 filters active
New this week Under ¥5M Free / Near-Free Akiya Banks Traditional / Kominka

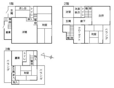
Isahaya, Nagasaki Prefecture

Buy Land Traditional House Farmhouse +3
1,434m²
45m²
seven_eleven convenience store Seven Eleven - 6 min walk / 1 min drive

Isahaya, Nagasaki Prefecture

Buy Land Near Station Rice Field +2
273m²
seven_eleven convenience store Seven Eleven - 6 min walk / 1 min drive

Isahaya, Nagasaki Prefecture

Buy Land
273m²
seven_eleven convenience store Seven Eleven - 6 min walk / 1 min drive

Isahaya, Nagasaki Prefecture

Buy House Quiet Area
81m²
129m²
family_mart convenience store Family Mart - 61 min walk / 12 min drive
Loading properties...