Back to results New 4LDK House in Kawaguchi, Saitama - 2026 Completion
Added 6 days ago
¥41,800,000

Oaza Angyo Ryonezawa, Kawaguchi City, Saitama Prefecture

埼玉県川口市大字安行領根岸

Buy House New Build Corner Lot Terrace Roof Terrace Suburban Quiet Area Stadium

Know someone who would love this? Gift them a subscription

This property has more to show

Earthquake & flood hazard assessment
Purchase cost & tax estimates
Full AI-translated description

Trusted by property buyers worldwide

Start 3-Day Free Trial

$5/month after trial · Cancel anytime

New Construction Detached House in Kawaguchi City, Saitama

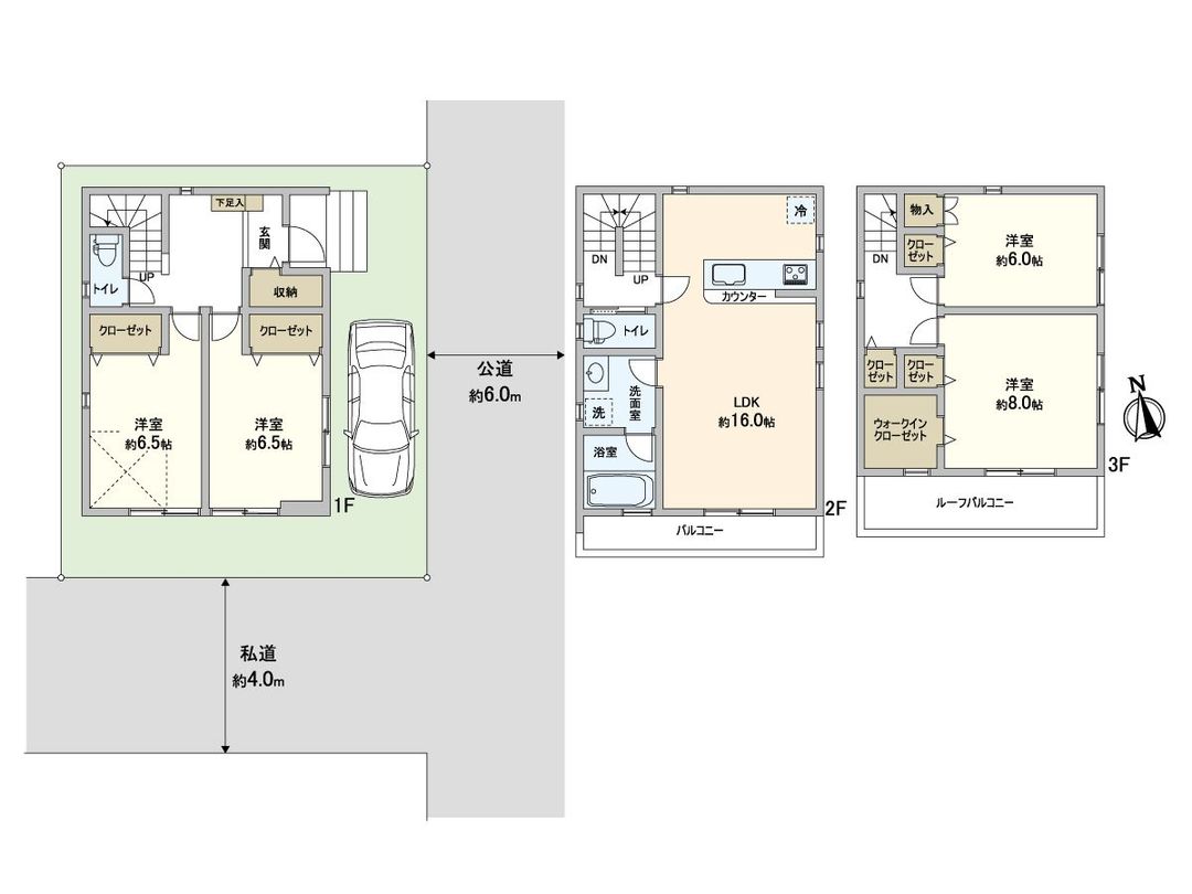
This newly built detached house is located in the quiet residential neighborhood of Oaza Angyo Ryonezawa, Kawaguchi City, Saitama Prefecture. The property is situated on a southeast-facing corner lot, ensuring excellent sunlight. The house offers a total floor area of 112.61 sqm (approximately 34.06 tsubo) with a 4LDK layout, where all living rooms are approximately 6.0 tatami mats or larger. Each room is equipped with a closet, and the 3rd-floor Western-style room (approx. 8 tatami mats) features a walk-in closet.

The property includes a private car space for one vehicle. Notable equipment and features include a counter kitchen, built-in dishwasher, built-in water purifier, bathroom heater/dryer, and two toilets with warm-water washing bidet seats. All rooms have flooring. The 2nd floor has a balcony and the 3rd floor features a roof terrace.

The land area is 79.58 sqm (approx. 24.07 tsubo), with an additional approximately 62 sqm of private road (shared ownership of 1/4). The property is located within the Shibahigashi Dai-4 Land Readjustment Project Area (provisional land exchange: Block 125, Lot 3). The building is a wooden 3-story structure scheduled for completion in August 2026.

Access is available via the Musashino Line's Higashi-Urawa Station (25-minute walk) and the Keihin-Tohoku/Negishi Line's Warabi Station (39-minute walk). The neighborhood is convenient, with supermarkets such as Kakugami Gyorui Kawaguchi Ten (approx. 540m, 7-minute walk) and Maruetsu Yanagizaki Ten (approx. 600m, 8-minute walk) within walking distance. Other nearby amenities include a drugstore, convenience store, and post office. The property is in a Second Category Residential Zone within the urbanization promotion area.

This description was AI-generated from the original Japanese listing and may contain inaccuracies. Please verify details with the source listing.

Summary

Bedrooms: 4
Parking: 1
Year built: 2026
Land size: 80 / 857sqft
House size: 113 / 1,212sqft

Short-Term Rental (Minpaku)

Transport

HND

Haneda Airport — 33 km away

Nearby Konbini

Family Mart Family Mart — 6 min walk

Internet Connectivity

Natural Hazard Assessment

Hazard data is a subscriber feature

Know the flood, landslide & tsunami risks before you buy

View Plans
¥41,800,000
Purchase Cost & Tax Estimates
Subscribe
Agent fee (3% + tax)¥000,000
Acquisition tax¥000,000
Registration & stamp¥000,000
Property tax (annual)¥00,000/yr
Subscribe to view cost & tax estimates →
Nightly Rate
Occupancy Rate
Max operating days/year
Est. booked nights/year
Gross annual revenue
Expenses breakdown
Cleaning
Platform fees (3%)
Management (20%)
Supplies
Insurance
Utilities
Total expenses
Net annual income
Monthly equivalent

Actual revenue varies by location, property quality, season, and management. Adjust sliders to model different scenarios.

Renovation Budget
Annual Rental Income

Auto-filled from Airbnb estimate

Purchase price
Renovation
Transaction costs
Total investment
Property tax
Insurance
Maintenance
Annual yield
Break-even
5-year return
10-year return
0 yr5101520+

Estimates only. Actual returns depend on rental demand, management quality, renovation scope, and market conditions. Adjust sliders to model scenarios.

Oaza Angyo Ryonezawa, Kawaguchi City, Saitama Prefecture

埼玉県川口市大字安行領根岸

Get Started

Sign in to save properties

Map & Street View

Map loading...

Location Accuracy Notice: Although we try to make the map accurate with coordinates or address details provided, the location data is provided by the agent. This map data should be used as reference for the surrounding area foremost.

Location Type Beds Price Land House View

* Sold properties shown for price comparison only. Prices reflect historical sale data.

Location Type Beds Rent/Month Land House View

* Rental prices shown are monthly rates. Contact property owner for current availability.