Back to results Modern 2020 House in Nagoya Showa Ward with Office Space
Added 3 days ago
¥95,800,000

2-chome, Ehogocho, Showa Ward, Nagoya City, Aichi Prefecture

愛知県名古屋市昭和区恵方町2丁目

Buy Move-in Ready Near Station House Parking Suburban Legoland Ghibli Park Stadium Aquarium

Know someone who would love this? Gift them a subscription

This property has more to show

Earthquake & flood hazard assessment
Purchase cost & tax estimates
Full AI-translated description

Trusted by property buyers worldwide

Start 3-Day Free Trial

$5/month after trial · Cancel anytime

Modern Detached House in Nagoya's Showa Ward

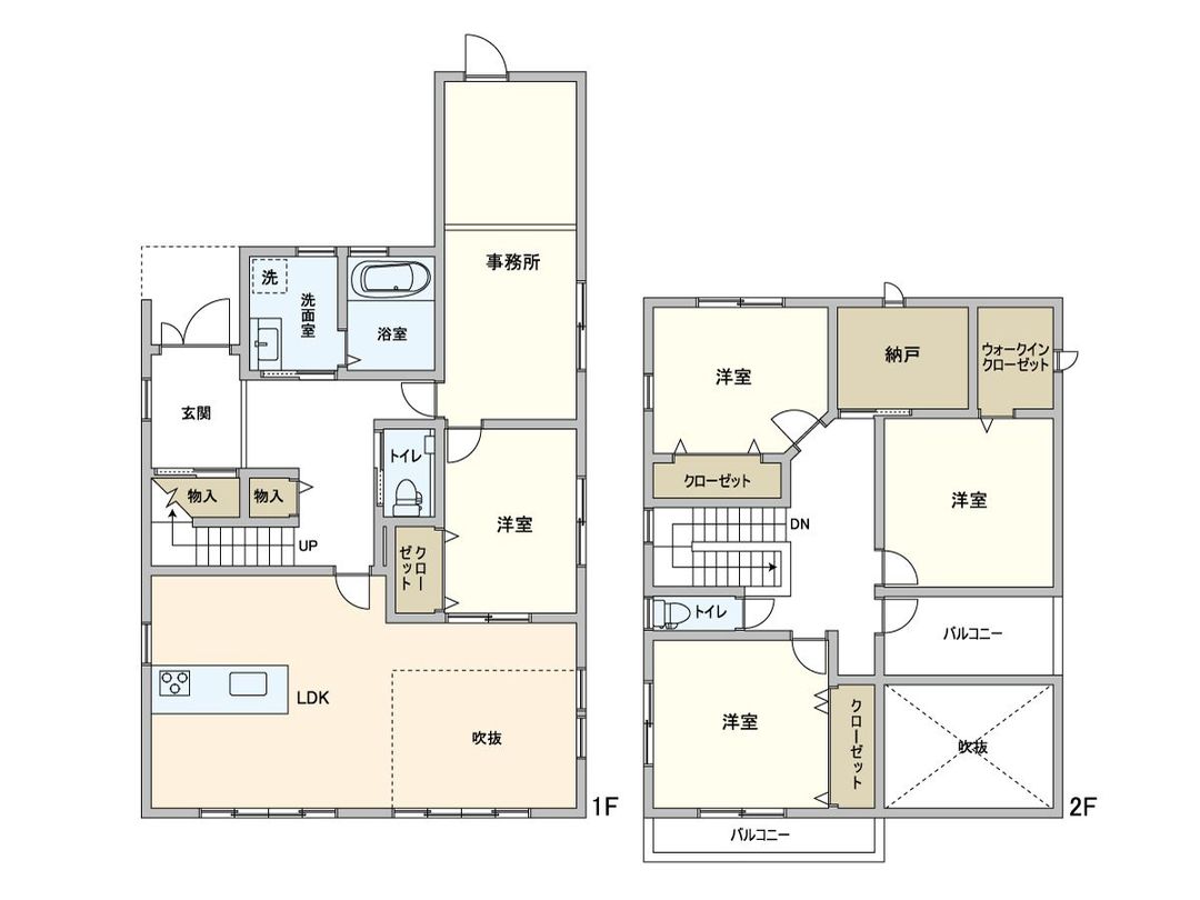
This property is a modern detached house built in August 2020, offering a move-in ready condition in a convenient Nagoya location. The house features a simple monochrome exterior and a total floor area of 156.73 sqm (approximately 47.41 tsubo) on a land plot of 156.36 sqm (approximately 47.29 tsubo). The layout is a 4SLDK plus an office space, with the S/service space designated as a storage room. Key features include a wide carport, an entrance with handrails, a bathroom with a window for ventilation, and ample storage with closet space in all rooms and corridors, plus the additional storage room.

The equipment and layout are designed for modern living. The first floor includes an office space. The second floor benefits from good natural lighting due to two balconies and a void space. A walk-in closet is installed, and toilets are located on both the first and second floors.

The location is highly accessible, within an 8-minute walk from both Gokiso Station on the Sakura-dori Line and Sakurayama Station on the same line. It is also a 14-minute walk from Arahata Station on the Tsurumai Line, providing access to multiple train routes. The neighborhood is family-friendly, with Gokiso Elementary School about 390 meters away, Max Value supermarket approximately 630 meters away, and a Seven-Eleven convenience store about 380 meters distant. Other nearby amenities include a pharmacy, a post office, and the Daicho Fureai Park.

Special Note: This property exceeds the predetermined building coverage ratio. In the event of reconstruction, a building of the same scale cannot be built.

This description was AI-generated from the original Japanese listing and may contain inaccuracies. Please verify details with the source listing.

Summary

Bedrooms: 4
Parking: 1
Year built: 2020
Land size: 156 / 1,683sqft
House size: 157 / 1,687sqft

Short-Term Rental (Minpaku)

Transport

Nearby Konbini

Seven Eleven Seven Eleven — 1 min walk
Lawson Store 100 Lawson Store 100 — 5 min walk

Internet Connectivity

Natural Hazard Assessment

Hazard data is a subscriber feature

Know the flood, landslide & tsunami risks before you buy

View Plans
¥95,800,000
Purchase Cost & Tax Estimates
Subscribe
Agent fee (3% + tax)¥000,000
Acquisition tax¥000,000
Registration & stamp¥000,000
Property tax (annual)¥00,000/yr
Subscribe to view cost & tax estimates →
Nightly Rate
Occupancy Rate
Max operating days/year
Est. booked nights/year
Gross annual revenue
Expenses breakdown
Cleaning
Platform fees (3%)
Management (20%)
Supplies
Insurance
Utilities
Total expenses
Net annual income
Monthly equivalent

Actual revenue varies by location, property quality, season, and management. Adjust sliders to model different scenarios.

Renovation Budget
Annual Rental Income

Auto-filled from Airbnb estimate

Purchase price
Renovation
Transaction costs
Total investment
Property tax
Insurance
Maintenance
Annual yield
Break-even
5-year return
10-year return
0 yr5101520+

Estimates only. Actual returns depend on rental demand, management quality, renovation scope, and market conditions. Adjust sliders to model scenarios.

2-chome, Ehogocho, Showa Ward, Nagoya City, Aichi Prefecture

愛知県名古屋市昭和区恵方町2丁目

Get Started

Sign in to save properties

Map & Street View

Map loading...

Location Accuracy Notice: Although we try to make the map accurate with coordinates or address details provided, the location data is provided by the agent. This map data should be used as reference for the surrounding area foremost.

Location Type Beds Price Land House View

* Sold properties shown for price comparison only. Prices reflect historical sale data.

Location Type Beds Rent/Month Land House View

* Rental prices shown are monthly rates. Contact property owner for current availability.