Back to results 7LDK Detached House on Large Corner Plot in Ino, Kochi

Needs Verification

This listing hasn't been verified recently. Tap to request a priority check!

¥21,800,000

Tennanminami 9-chome, Ino Town, Agawa District, Kochi Prefecture

高知県吾川郡いの町天王南9丁目

Buy Garden House Gas Heating/Cooking

Know someone who would love this? Gift them a subscription

This property has more to show

Earthquake & flood hazard assessment
Purchase cost & tax estimates
Full AI-translated description

Trusted by property buyers worldwide

Start 3-Day Free Trial

$5/month after trial · Cancel anytime

Spacious Family Home on a Generous Corner Plot in Ino, Kochi

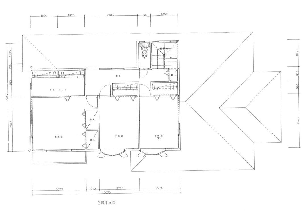
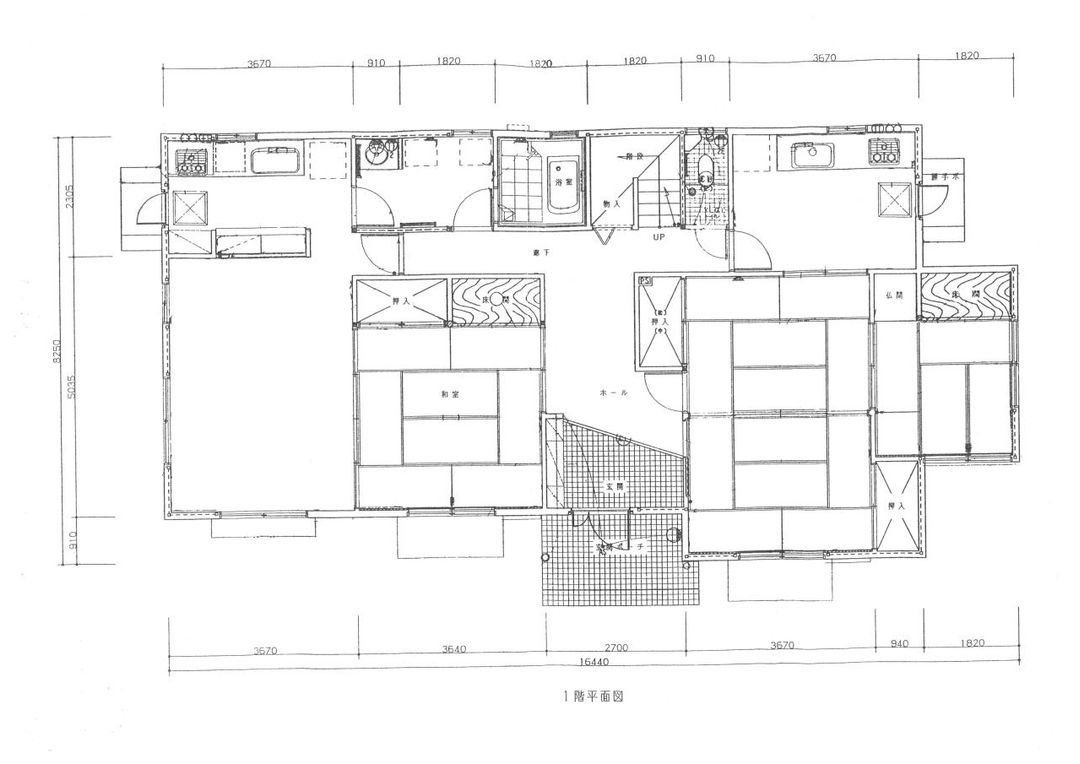
This substantial detached house, built in March 1994, offers a generous 178.89㎡ of living space arranged over two floors in a 7LDK layout, providing ample room for a large family or those desiring significant space. The property sits on a sizable 334.90㎡ corner plot, a rare find that enhances privacy and allows for abundant natural light from multiple sides.

The property is equipped with propane gas, a public water supply, a sewer system, side ditches, electricity, and a garden. Special notes detail the advantageous corner lot access: it fronts a 6-meter wide public road to the north with a 21-meter frontage, and a 4.1-meter wide public road to the west, also with a 21-meter frontage, ensuring excellent accessibility and potential.

Located in the Tennanminami 9-chome area of Ino Town, Kochi Prefecture, the home is within a 5-minute walk of the Tenno New Town South bus stop, offering convenient local transport. The area is part of Kochi's scenic Agawa District, known for its natural beauty and tranquil living environment. An interesting local landmark is the historic Ino Paper Museum, which celebrates the town's long-standing tradition of handmade Tosa paper, a craft practiced for over 1,000 years.

This description was AI-generated from the original Japanese listing and may contain inaccuracies. Please verify details with the source listing.

Summary

Bedrooms: 7
Parking: 1
Year built: 1994
Land size: 335 / 3,605sqft
House size: 179 / 1,926sqft

Short-Term Rental (Minpaku)

Transport

KIX

Kansai International Airport — 193 km away

Nearby Konbini

Lawson Lawson — 24 min walk
Family Mart Family Mart — 35 min walk

Internet Connectivity

Natural Hazard Assessment

Hazard data is a subscriber feature

Know the flood, landslide & tsunami risks before you buy

View Plans
¥21,800,000
Purchase Cost & Tax Estimates
Subscribe
Agent fee (3% + tax)¥000,000
Acquisition tax¥000,000
Registration & stamp¥000,000
Property tax (annual)¥00,000/yr
Subscribe to view cost & tax estimates →
Nightly Rate
Occupancy Rate
Max operating days/year
Est. booked nights/year
Gross annual revenue
Expenses breakdown
Cleaning
Platform fees (3%)
Management (20%)
Supplies
Insurance
Utilities
Total expenses
Net annual income
Monthly equivalent

Actual revenue varies by location, property quality, season, and management. Adjust sliders to model different scenarios.

Renovation Budget
Annual Rental Income

Auto-filled from Airbnb estimate

Purchase price
Renovation
Transaction costs
Total investment
Property tax
Insurance
Maintenance
Annual yield
Break-even
5-year return
10-year return
0 yr5101520+

Estimates only. Actual returns depend on rental demand, management quality, renovation scope, and market conditions. Adjust sliders to model scenarios.

Tennanminami 9-chome, Ino Town, Agawa District, Kochi Prefecture

高知県吾川郡いの町天王南9丁目

Get Started

Sign in to save properties

Map & Street View

Map loading...

Location Accuracy Notice: Although we try to make the map accurate with coordinates or address details provided, the location data is provided by the agent. This map data should be used as reference for the surrounding area foremost.

Location Type Beds Price Land House View

* Sold properties shown for price comparison only. Prices reflect historical sale data.

Location Type Beds Rent/Month Land House View

* Rental prices shown are monthly rates. Contact property owner for current availability.