Back to results Large 26,684 sqm Land Plot with Old House in Sunagawa, Hokkaido
Added 2 days ago
¥13,500,000

Higashi 5-jo Kita 5, Sunagawa City, Hokkaido

北海道砂川市東五条北5丁目

Buy Renovation Project Land Corner Lot Rural

Know someone who would love this? Gift them a subscription

This property has more to show

Earthquake & flood hazard assessment
Purchase cost & tax estimates
Full AI-translated description

Trusted by property buyers worldwide

Start 3-Day Free Trial

$5/month after trial · Cancel anytime

Large Land Plot with Existing Structure in Sunagawa, Hokkaido

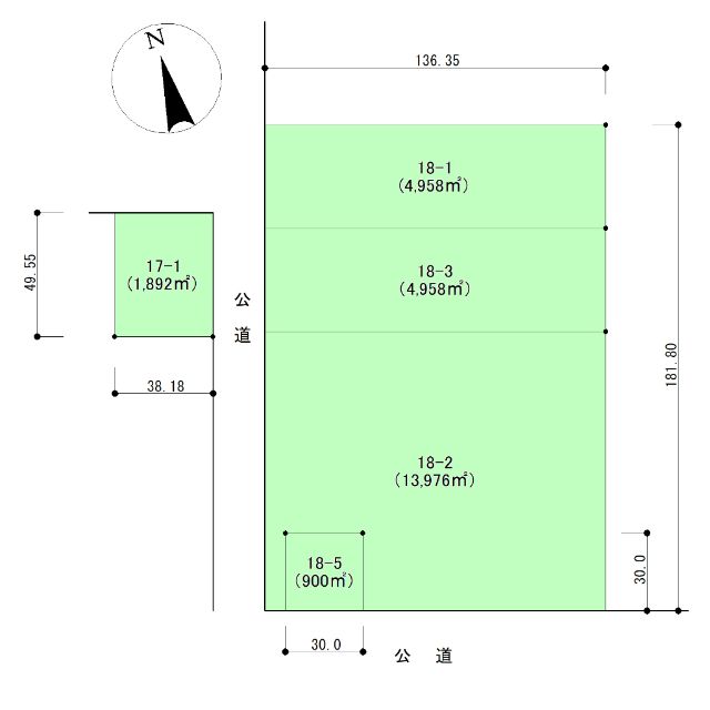
This listing offers a substantial land plot of 26,684 square meters (approximately 8,071.91 tsubo) located in Higashi 5-jo Kita 5, Sunagawa City, Hokkaido. The property is being sold with an existing building and a shed. According to the agent's special notes, the current condition is described as "古家あり" (there is an old house). The agent encourages potential buyers to arrange a viewing, stating: "There is an old house. If you would like to actually see it for free, please feel free to contact us with your preferred date."

The land is a corner lot with road frontage to the west and south, situated on flat terrain within a First Category Medium-to-High-Rise Residential Exclusive Zone. The plot has a building coverage ratio of 60% and a floor area ratio of 150%, with no specific construction conditions attached to the sale. Ownership rights are freehold.

Access is provided via JR Hakodate Main Line's Sunagawa Station, which is approximately a 15-minute walk away. The surrounding area offers a range of daily amenities within a reasonable distance, including Sunagawa City Central Elementary School (833m), a supermarket (Co-op Sapporo Sunagawa Store, 1157m), a convenience store (Seven-Eleven, 1458m), a drugstore, a hospital, and a bank.

This description was AI-generated from the original Japanese listing and may contain inaccuracies. Please verify details with the source listing.

Summary

Land size: 26,684 / 287,227sqft

Short-Term Rental (Minpaku)

Transport

CTS

New Chitose Airport — 82 km away

Nearby Konbini

Seven Eleven Seven Eleven — 4 min walk
Seicomart Seicomart — 7 min walk

Internet Connectivity

Natural Hazard Assessment

Hazard data is a subscriber feature

Know the flood, landslide & tsunami risks before you buy

View Plans
¥13,500,000
Purchase Cost & Tax Estimates
Subscribe
Agent fee (3% + tax)¥000,000
Acquisition tax¥000,000
Registration & stamp¥000,000
Property tax (annual)¥00,000/yr
Subscribe to view cost & tax estimates →
Nightly Rate
Occupancy Rate
Max operating days/year
Est. booked nights/year
Gross annual revenue
Expenses breakdown
Cleaning
Platform fees (3%)
Management (20%)
Supplies
Insurance
Utilities
Total expenses
Net annual income
Monthly equivalent

Actual revenue varies by location, property quality, season, and management. Adjust sliders to model different scenarios.

Renovation Budget
Annual Rental Income

Auto-filled from Airbnb estimate

Purchase price
Renovation
Transaction costs
Total investment
Property tax
Insurance
Maintenance
Annual yield
Break-even
5-year return
10-year return
0 yr5101520+

Estimates only. Actual returns depend on rental demand, management quality, renovation scope, and market conditions. Adjust sliders to model scenarios.

Higashi 5-jo Kita 5, Sunagawa City, Hokkaido

北海道砂川市東五条北5丁目

Get Started

Sign in to save properties

Map & Street View

Map loading...

Location Accuracy Notice: Although we try to make the map accurate with coordinates or address details provided, the location data is provided by the agent. This map data should be used as reference for the surrounding area foremost.

Location Type Beds Price Land House View

* Sold properties shown for price comparison only. Prices reflect historical sale data.

Location Type Beds Rent/Month Land House View

* Rental prices shown are monthly rates. Contact property owner for current availability.