Back to results New 3LDK House in Kawaguchi, Saitama - 2026 Completion
Added 6 days ago
¥41,800,000

2-chome, Sakashita-cho, Kawaguchi City, Saitama Prefecture

埼玉県川口市坂下町2丁目

Buy Move-in Ready Garden Near Station House New Build Parking Stadium

Know someone who would love this? Gift them a subscription

This property has more to show

Earthquake & flood hazard assessment
Purchase cost & tax estimates
Full AI-translated description

Trusted by property buyers worldwide

Start 3-Day Free Trial

$5/month after trial · Cancel anytime

New Construction Detached House in Kawaguchi City, Saitama

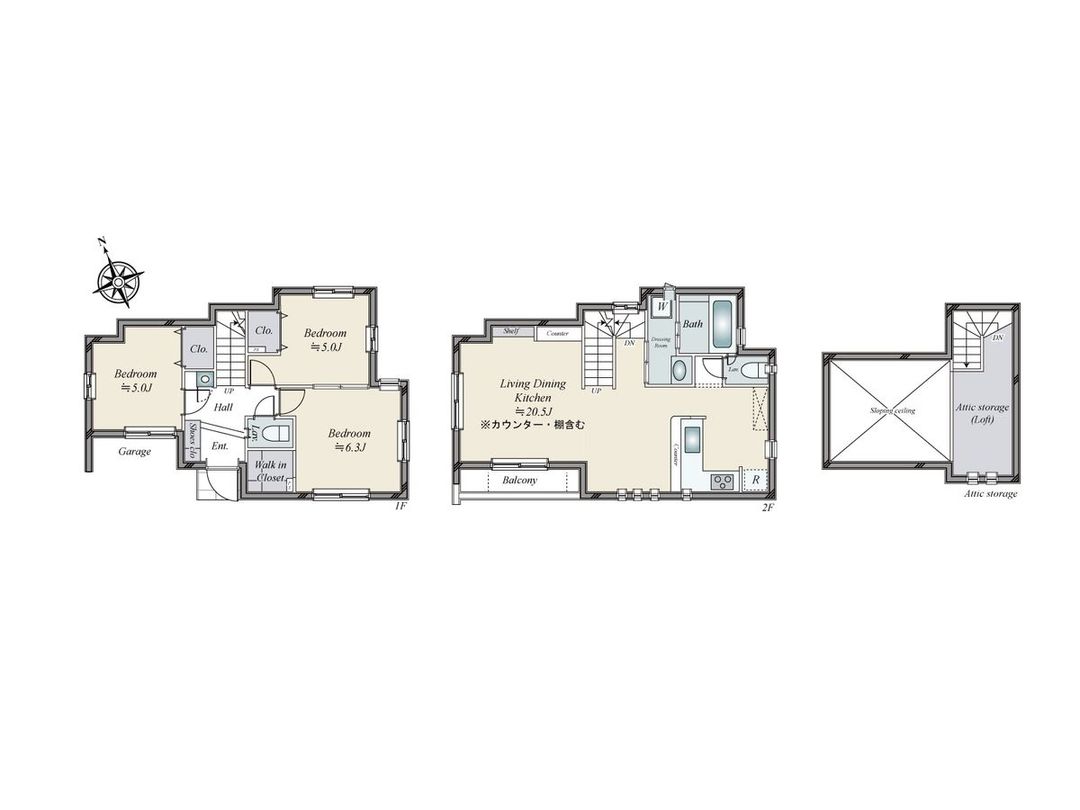
This newly built detached house, scheduled for completion in August 2026, is located in Kawaguchi City, Saitama Prefecture. The property is a 3LDK layout with a total floor area of 89.43 sqm, which includes a 4.96 sqm car garage and porch area. The land area is 82.23 sqm, with an additional approximately 75 sqm of private road (shared ownership of 1/5).

The house features an L-shaped counter kitchen with a system kitchen that includes a dishwasher, artificial marble top, and a touchless faucet with an integrated water purifier. All living rooms benefit from two-sided natural light, ensuring good sunlight and ventilation. The property includes a walk-in closet, a loft, and toilets on both the first and second floors equipped with warm-water washing functions. Additional amenities include a bathroom ventilation dryer, a vanity with a three-sided mirror, and double-glazed windows for superior insulation. A parking space is available, though there are vehicle type restrictions.

Access is convenient, with Hatogaya Station on the Saitama Rapid Railway approximately a 13-minute walk away. Daily necessities are within easy reach, with supermarkets such as Seiyu Hatogaya and Maruya Akai stores about a 7-minute walk from the property.

Important notes regarding the property details: The building area includes the car garage area of 4.96 sqm and the porch area. There are discrepancies in the private road area and land area between the official registry, survey map, and building confirmation documents. The parking space has vehicle type restrictions. The official land category in the registry is currently "field," but the seller will complete the registration change to "residential land" at their own responsibility and expense before the ownership transfer and delivery of the property.

This description was AI-generated from the original Japanese listing and may contain inaccuracies. Please verify details with the source listing.

Summary

Bedrooms: 3
Parking: 1
Year built: 2026
Land size: 82 / 885sqft
House size: 89 / 963sqft

Short-Term Rental (Minpaku)

Transport

HND

Haneda Airport — 31 km away

Nearby Konbini

Seven Eleven Seven Eleven — 3 min walk
Lawson Lawson — 7 min walk
Mini Stop Mini Stop — 7 min walk

Internet Connectivity

Natural Hazard Assessment

Hazard data is a subscriber feature

Know the flood, landslide & tsunami risks before you buy

View Plans
¥41,800,000
Purchase Cost & Tax Estimates
Subscribe
Agent fee (3% + tax)¥000,000
Acquisition tax¥000,000
Registration & stamp¥000,000
Property tax (annual)¥00,000/yr
Subscribe to view cost & tax estimates →
Nightly Rate
Occupancy Rate
Max operating days/year
Est. booked nights/year
Gross annual revenue
Expenses breakdown
Cleaning
Platform fees (3%)
Management (20%)
Supplies
Insurance
Utilities
Total expenses
Net annual income
Monthly equivalent

Actual revenue varies by location, property quality, season, and management. Adjust sliders to model different scenarios.

Renovation Budget
Annual Rental Income

Auto-filled from Airbnb estimate

Purchase price
Renovation
Transaction costs
Total investment
Property tax
Insurance
Maintenance
Annual yield
Break-even
5-year return
10-year return
0 yr5101520+

Estimates only. Actual returns depend on rental demand, management quality, renovation scope, and market conditions. Adjust sliders to model scenarios.

2-chome, Sakashita-cho, Kawaguchi City, Saitama Prefecture

埼玉県川口市坂下町2丁目

Get Started

Sign in to save properties

Map & Street View

Map loading...

Location Accuracy Notice: Although we try to make the map accurate with coordinates or address details provided, the location data is provided by the agent. This map data should be used as reference for the surrounding area foremost.

Location Type Beds Price Land House View

* Sold properties shown for price comparison only. Prices reflect historical sale data.

Location Type Beds Rent/Month Land House View

* Rental prices shown are monthly rates. Contact property owner for current availability.