Back to results 3DK Detached House for Sale in Iruma City, Saitama
Added 7 days ago
¥9,500,000

Miyamae-cho, Iruma City, Saitama Prefecture

埼玉県入間市宮前町

Buy Move-in Ready Near Station House Suburban Quiet Area

Know someone who would love this? Gift them a subscription

This property has more to show

Earthquake & flood hazard assessment
Purchase cost & tax estimates
Full AI-translated description

Trusted by property buyers worldwide

Start 3-Day Free Trial

$5/month after trial · Cancel anytime

Detached House in Iruma City, Saitama

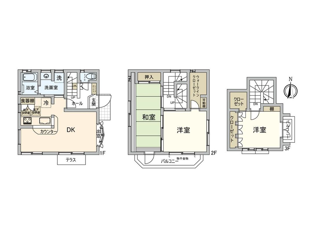
This property is a detached house located in Miyamae-cho, Iruma City, Saitama Prefecture. The house is a 3-story wooden structure built in October 1992, with a total floor area of 79.86 sqm (approximately 24.15 tsubo) on a land area of 54.29 sqm (approximately 16.42 tsubo). The layout is a 3DK, designed with a focus on practicality.

The property features a bright kitchen with windows and a face-to-face counter style, facilitating family interaction. The floor plan concentrates the wet areas (kitchen and bathroom) in one location for convenience. All living rooms benefit from two-sided windows, ensuring good ventilation and natural light. Storage is ample, including a walk-in closet, under-floor storage, and storage space under the stairs.

A key feature noted by the agent is that the property includes a share of ownership in the passageway on the north side of the lot (a 1/2 share).

The location is a quiet residential area surrounded by parks and greenery. Access is convenient via a 14-minute walk to Irumashi Station on the Seibu Ikebukuro/Toshima Line, which is a stop for express trains, making commuting easier. Daily amenities are within easy reach, with supermarkets like Value Ropia Iruma Kasugacho and Inageya Iruma Kasugacho within an 11-minute walk. The local Miyamae Flower Park is just a 4-minute walk away.

This description was AI-generated from the original Japanese listing and may contain inaccuracies. Please verify details with the source listing.

Summary

Year built: 1992
Land size: 54 / 584sqft
House size: 80 / 860sqft

Short-Term Rental (Minpaku)

Transport

HND

Haneda Airport — 49 km away

Nearest Konbini

seven_eleven Seven Eleven — 2 min walk

Internet Connectivity

Natural Hazard Assessment

Hazard data is a subscriber feature

Know the flood, landslide & tsunami risks before you buy

View Plans
¥9,500,000
Purchase Cost & Tax Estimates
Subscribe
Agent fee (3% + tax)¥000,000
Acquisition tax¥000,000
Registration & stamp¥000,000
Property tax (annual)¥00,000/yr
Subscribe to view cost & tax estimates →
Nightly Rate
Occupancy Rate
Max operating days/year
Est. booked nights/year
Gross annual revenue
Expenses breakdown
Cleaning
Platform fees (3%)
Management (20%)
Supplies
Insurance
Utilities
Total expenses
Net annual income
Monthly equivalent

Actual revenue varies by location, property quality, season, and management. Adjust sliders to model different scenarios.

Renovation Budget
Annual Rental Income

Auto-filled from Airbnb estimate

Purchase price
Renovation
Transaction costs
Total investment
Property tax
Insurance
Maintenance
Annual yield
Break-even
5-year return
10-year return
0 yr5101520+

Estimates only. Actual returns depend on rental demand, management quality, renovation scope, and market conditions. Adjust sliders to model scenarios.

Miyamae-cho, Iruma City, Saitama Prefecture

埼玉県入間市宮前町

Get Started

Sign in to save properties

Map & Street View

Map loading...

Location Accuracy Notice: Although we try to make the map accurate with coordinates or address details provided, the location data is provided by the agent. This map data should be used as reference for the surrounding area foremost.

Location Type Beds Price Land House View

* Sold properties shown for price comparison only. Prices reflect historical sale data.

Location Type Beds Rent/Month Land House View

* Rental prices shown are monthly rates. Contact property owner for current availability.