Back to results New Build 4LDK House in Kunitachi, Tokyo - Completion 2026
Added 5 days ago
¥64,990,000

Nishi 2-chome, Kunitachi City, Tokyo

東京都国立市西2丁目

Buy Move-in Ready Garden House New Build Gas Heating/Cooking Suburban Quiet Area Sanrio Puroland

Know someone who would love this? Gift them a subscription

This property has more to show

Earthquake & flood hazard assessment
Purchase cost & tax estimates
Full AI-translated description

Trusted by property buyers worldwide

Start 3-Day Free Trial

$5/month after trial · Cancel anytime

New Construction Detached House in Kunitachi, Tokyo

This newly built detached house is located in a quiet residential area of Kunitachi City, Tokyo. The property is scheduled for completion in June 2026, with the building year noted as July 2026. It offers convenient access to public transportation, being within a 16-minute walk from JR Chuo Line "Kunitachi" Station, a 14-minute walk from JR Nambu Line "Yagawa" Station, and a 16-minute walk from JR Nambu Line "Nishi-Kunitachi" Station.

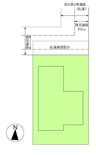
The property features a 4LDK layout with a breakdown of Western-style rooms measuring 6, 5.2, 5, and 4.5 tatami mats, and an LDK area of 17.5 tatami mats. The total land area is 99.57 sqm (approximately 30.11 tsubo), with a private road area of 15.27 sqm. The total building floor area is 96.87 sqm (approximately 29.30 tsubo). The structure is a two-story wooden building.

Key equipment and facilities include city gas, water supply, sewer system, heated toilet seats (in two separate toilet locations), a bathroom dryer, a bath reheating function, a shampoo dresser, a system kitchen, a 24-hour ventilation system, and a garden. Special notes regarding road access detail a one-sided road to the north, with a width of 2 meters on private land and a frontage of 7.6 meters. The property is located within the City Planning Area, designated as a Category I Low-Rise Exclusive Residential Zone. The building-to-land ratio is 50% and the floor area ratio is 100%. The land is flat. Parking is available. The property is under construction and not yet completed.

This description was AI-generated from the original Japanese listing and may contain inaccuracies. Please verify details with the source listing.

Summary

Bedrooms: 4
Parking: 1
Year built: 2026
Land size: 100 / 1,072sqft
House size: 97 / 1,043sqft

Short-Term Rental (Minpaku)

Transport

HND

Haneda Airport — 35 km away

Nearby Konbini

Lawson Lawson — 7 min walk

Internet Connectivity

Natural Hazard Assessment

Hazard data is a subscriber feature

Know the flood, landslide & tsunami risks before you buy

View Plans
¥64,990,000
Purchase Cost & Tax Estimates
Subscribe
Agent fee (3% + tax)¥000,000
Acquisition tax¥000,000
Registration & stamp¥000,000
Property tax (annual)¥00,000/yr
Subscribe to view cost & tax estimates →
Nightly Rate
Occupancy Rate
Max operating days/year
Est. booked nights/year
Gross annual revenue
Expenses breakdown
Cleaning
Platform fees (3%)
Management (20%)
Supplies
Insurance
Utilities
Total expenses
Net annual income
Monthly equivalent

Actual revenue varies by location, property quality, season, and management. Adjust sliders to model different scenarios.

Renovation Budget
Annual Rental Income

Auto-filled from Airbnb estimate

Purchase price
Renovation
Transaction costs
Total investment
Property tax
Insurance
Maintenance
Annual yield
Break-even
5-year return
10-year return
0 yr5101520+

Estimates only. Actual returns depend on rental demand, management quality, renovation scope, and market conditions. Adjust sliders to model scenarios.

Nishi 2-chome, Kunitachi City, Tokyo

東京都国立市西2丁目

Get Started

Sign in to save properties

Map & Street View

Map loading...

Location Accuracy Notice: Although we try to make the map accurate with coordinates or address details provided, the location data is provided by the agent. This map data should be used as reference for the surrounding area foremost.

Location Type Beds Price Land House View

* Sold properties shown for price comparison only. Prices reflect historical sale data.

Location Type Beds Rent/Month Land House View

* Rental prices shown are monthly rates. Contact property owner for current availability.