Back to results Commercial Building for Sale in Nakajima-cho, Hiroshima
Added 4 days ago
¥72,800,000

Nakajima-cho, Naka Ward, Hiroshima City, Hiroshima Prefecture

広島県広島市中区中島町

Buy Business Rural Suburban Near Shopping

Know someone who would love this? Gift them a subscription

This property has more to show

Earthquake & flood hazard assessment
Purchase cost & tax estimates
Full AI-translated description

Trusted by property buyers worldwide

Start 3-Day Free Trial

$5/month after trial · Cancel anytime

Commercial Building for Sale in Nakajima-cho, Hiroshima

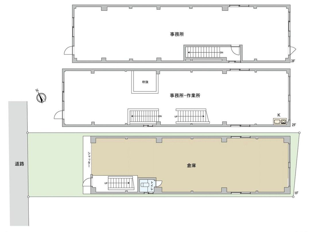
This commercial building is located in the convenient Nakajima-cho district of Hiroshima City's Naka Ward. The property offers excellent access to the city center. The building is currently tenanted, operating as an office and warehouse. For details regarding the current lease and rental income, please inquire with the agent.

The property sits on a land area of approximately 36.5 tsubo (120.82 sqm) with a front road width of over 6 meters. The building itself is a three-story steel structure with a total floor area of approximately 80.15 tsubo (264.96 sqm). It was built in November 1990. The layout is designated as 3K. The land is designated for residential use (宅地) within a commercial neighborhood zone. Building-to-land ratio is 80% with a floor area ratio of 400%, though this is restricted to 360% due to the front road width. Ownership rights are full.

The location is highly accessible. Hiroshima Station on the Sanyo Main Line is a 23-minute bus ride away, followed by a 2-minute walk from the Kako-machi bus stop. The area is well-serviced with amenities including a supermarket (Fresta Okazu Kobo Takano-bashi) within an 11-minute walk, a park (Otemachi Dai-ni Park) within 6 minutes, a hospital (Nakajima Tsuchiya Hospital) within 2 minutes, and an elementary school (Hiroshima City Nakajima Elementary School) within a 7-minute walk. Several convenience stores, a post office, and a bank are also within a short walking distance.

This description was AI-generated from the original Japanese listing and may contain inaccuracies. Please verify details with the source listing.

Summary

Year built: 1990
Land size: 121 / 1,301sqft
House size: 265 / 2,852sqft

Short-Term Rental (Minpaku)

Transport

FUK

Fukuoka Airport — 205 km away

Nearest Konbini

sunkus Sunkus — 1 min walk

Internet Connectivity

Natural Hazard Assessment

Hazard data is a subscriber feature

Know the flood, landslide & tsunami risks before you buy

View Plans
¥72,800,000
Purchase Cost & Tax Estimates
Subscribe
Agent fee (3% + tax)¥000,000
Acquisition tax¥000,000
Registration & stamp¥000,000
Property tax (annual)¥00,000/yr
Subscribe to view cost & tax estimates →
Nightly Rate
Occupancy Rate
Max operating days/year
Est. booked nights/year
Gross annual revenue
Expenses breakdown
Cleaning
Platform fees (3%)
Management (20%)
Supplies
Insurance
Utilities
Total expenses
Net annual income
Monthly equivalent

Actual revenue varies by location, property quality, season, and management. Adjust sliders to model different scenarios.

Renovation Budget
Annual Rental Income

Auto-filled from Airbnb estimate

Purchase price
Renovation
Transaction costs
Total investment
Property tax
Insurance
Maintenance
Annual yield
Break-even
5-year return
10-year return
0 yr5101520+

Estimates only. Actual returns depend on rental demand, management quality, renovation scope, and market conditions. Adjust sliders to model scenarios.

Nakajima-cho, Naka Ward, Hiroshima City, Hiroshima Prefecture

広島県広島市中区中島町

Get Started

Sign in to save properties

Map & Street View

Map loading...

Location Accuracy Notice: Although we try to make the map accurate with coordinates or address details provided, the location data is provided by the agent. This map data should be used as reference for the surrounding area foremost.

Location Type Beds Price Land House View

* Sold properties shown for price comparison only. Prices reflect historical sale data.

Location Type Beds Rent/Month Land House View

* Rental prices shown are monthly rates. Contact property owner for current availability.