Back to results Commercial Shop & Office Building for Sale in Yahata, Miyagi
Added 3 days ago
¥150,000,000

Yoshioka Mahoroba 2-chome, Yahata, Kurokawa District, Miyagi Prefecture

宮城県黒川郡大和町吉岡まほろば2丁目

Buy Business House Parking Suburban Near Shopping

Know someone who would love this? Gift them a subscription

This property has more to show

Earthquake & flood hazard assessment
Purchase cost & tax estimates
Full AI-translated description

Trusted by property buyers worldwide

Start 3-Day Free Trial

$5/month after trial · Cancel anytime

Commercial Property in Yahata, Miyagi

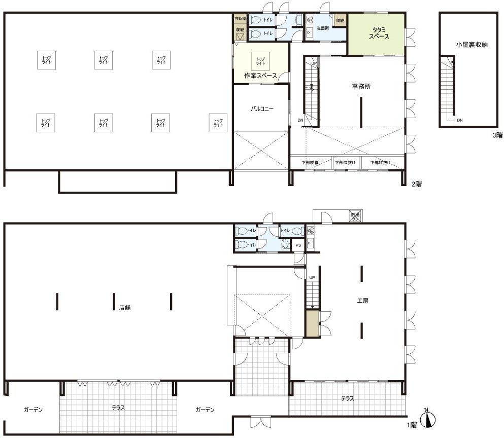
This commercial property, located in Yahata, Miyagi Prefecture, is a two-story wooden building constructed in November 2017. It offers a total floor area of 327.92 sqm (approximately 99.19 tsubo) on a large plot of land measuring 938.95 sqm (approximately 284.03 tsubo). The layout is designated as 3K, suitable for shop and office use.

The property boasts several key features. It has a south-facing orientation and a regular-shaped lot. Parking is available, with space for approximately 14 vehicles. The shop section benefits from high ceilings and a top light, creating a bright and spacious impression. The shop and workshop areas have separate entrances, allowing for independent use by different businesses. The location offers high visibility from the roadside. The agent's special note states: "Please be sure to check the parking lot on-site."

The neighborhood provides excellent convenience. A Seven-Eleven convenience store is just an 80-meter, 1-minute walk away. Other nearby amenities include a Trial supermarket, a drugstore, a Sunday supermarket, Yamazawa supermarket, and a Daiso store, all within a short walking distance. The Yahata Town Hall, Sendai Bank's Yoshioka branch, and Yoshioka Post Office are also accessible on foot. Public transportation is available via the Miyagi Kotsu bus, with the "Yahata Town Bus Terminal" stop approximately 960 meters (a 12-minute walk) from the property, connecting to Sendai City Subway Nanboku Line's Izumi-Chuo Station.

This description was AI-generated from the original Japanese listing and may contain inaccuracies. Please verify details with the source listing.

Summary

Parking: 14
Year built: 2017
Land size: 939 / 10,107sqft
House size: 328 / 3,530sqft

Short-Term Rental (Minpaku)

Transport

NRT

Narita International Airport — 300 km away

Nearby Konbini

Family Mart Family Mart — 9 min walk
Seven Eleven Seven Eleven — 10 min walk
Lawson Lawson — 13 min walk

Internet Connectivity

Natural Hazard Assessment

Hazard data is a subscriber feature

Know the flood, landslide & tsunami risks before you buy

View Plans
¥150,000,000
Purchase Cost & Tax Estimates
Subscribe
Agent fee (3% + tax)¥000,000
Acquisition tax¥000,000
Registration & stamp¥000,000
Property tax (annual)¥00,000/yr
Subscribe to view cost & tax estimates →
Nightly Rate
Occupancy Rate
Max operating days/year
Est. booked nights/year
Gross annual revenue
Expenses breakdown
Cleaning
Platform fees (3%)
Management (20%)
Supplies
Insurance
Utilities
Total expenses
Net annual income
Monthly equivalent

Actual revenue varies by location, property quality, season, and management. Adjust sliders to model different scenarios.

Renovation Budget
Annual Rental Income

Auto-filled from Airbnb estimate

Purchase price
Renovation
Transaction costs
Total investment
Property tax
Insurance
Maintenance
Annual yield
Break-even
5-year return
10-year return
0 yr5101520+

Estimates only. Actual returns depend on rental demand, management quality, renovation scope, and market conditions. Adjust sliders to model scenarios.

Yoshioka Mahoroba 2-chome, Yahata, Kurokawa District, Miyagi Prefecture

宮城県黒川郡大和町吉岡まほろば2丁目

Get Started

Sign in to save properties

Map & Street View

Map loading...

Location Accuracy Notice: Although we try to make the map accurate with coordinates or address details provided, the location data is provided by the agent. This map data should be used as reference for the surrounding area foremost.

Location Type Beds Price Land House View

* Sold properties shown for price comparison only. Prices reflect historical sale data.

Location Type Beds Rent/Month Land House View

* Rental prices shown are monthly rates. Contact property owner for current availability.