Back to results New 4LDK House in Hodogaya, Yokohama - 2026 Completion
Added 7 days ago
¥56,800,000

Kamisugedacho, Hodogaya Ward, Yokohama City, Kanagawa Prefecture

神奈川県横浜市保土ケ谷区上菅田町

Buy Move-in Ready Garden House New Build Parking Suburban Quiet Area Stadium

Know someone who would love this? Gift them a subscription

This property has more to show

Earthquake & flood hazard assessment
Purchase cost & tax estimates
Full AI-translated description

Trusted by property buyers worldwide

Start 3-Day Free Trial

$5/month after trial · Cancel anytime

New Construction Detached House in Yokohama's Hodogaya Ward

This newly built detached house is located in the quiet residential neighborhood of Kamisugedacho, Hodogaya Ward, Yokohama City, Kanagawa Prefecture. The property is conveniently situated within a 14-minute walk of the Sagami Railway Main Line's Nishi-Ya Station, providing direct train access.

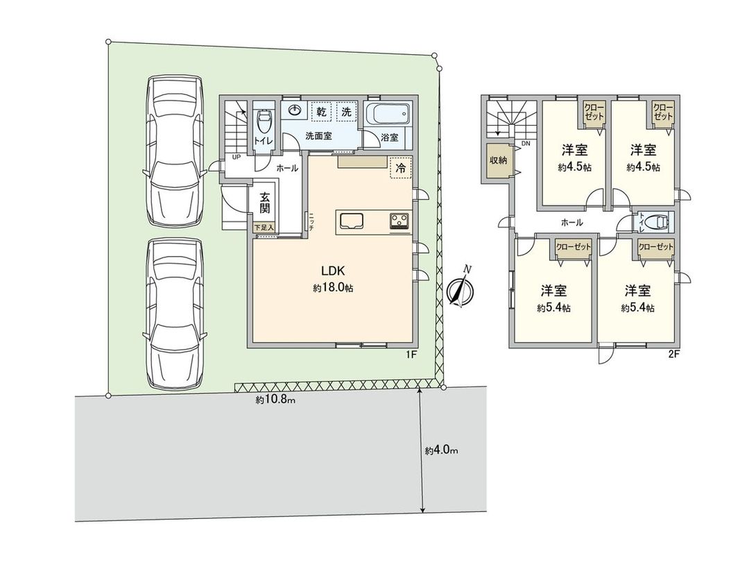
The house features a spacious 4LDK layout with a total floor area of 94.4 sqm (approximately 28.55 tsubo). The living, dining, and kitchen area (LDK) is a generous 18-jo in size and benefits from a southeast-facing orientation, ensuring excellent sunlight. The floor plan is designed with efficient household workflow in mind. Each of the western-style rooms on the second floor includes dedicated storage space.

The property comes equipped with a comprehensive range of modern amenities. These include a Peninsula kitchen, touchless faucets, aluminum-resin Low-E double-glazed windows, an automatic bath system, a bathroom heater and dryer, warm-water washlet toilets on both the first and second floors, a delivery box-equipped mailbox, a 24-hour ventilation system, a TV monitor intercom, and a smart key system. Parking is available on-site.

The surrounding area offers daily conveniences, with a supermarket (Sotetsu Rosen Sasanoyama Store) approximately a 7-minute walk away and a park (Kamisugeda Dai-4 Park) just a 2-minute walk from the property. The land is a regular-shaped plot in a Category I Low-Rise Residential Zone. The anticipated completion date is July 2026.

This description was AI-generated from the original Japanese listing and may contain inaccuracies. Please verify details with the source listing.

Summary

Bedrooms: 4
Parking: 1
Year built: 2026
Land size: 119 / 1,280sqft
House size: 94 / 1,016sqft

Short-Term Rental (Minpaku)

Transport

HND

Haneda Airport — 20 km away

Nearby Konbini

Seven Eleven Seven Eleven — 7 min walk
Lawson Lawson — 11 min walk
Family Mart Family Mart — 14 min walk

Internet Connectivity

Natural Hazard Assessment

Hazard data is a subscriber feature

Know the flood, landslide & tsunami risks before you buy

View Plans
¥56,800,000
Purchase Cost & Tax Estimates
Subscribe
Agent fee (3% + tax)¥000,000
Acquisition tax¥000,000
Registration & stamp¥000,000
Property tax (annual)¥00,000/yr
Subscribe to view cost & tax estimates →
Nightly Rate
Occupancy Rate
Max operating days/year
Est. booked nights/year
Gross annual revenue
Expenses breakdown
Cleaning
Platform fees (3%)
Management (20%)
Supplies
Insurance
Utilities
Total expenses
Net annual income
Monthly equivalent

Actual revenue varies by location, property quality, season, and management. Adjust sliders to model different scenarios.

Renovation Budget
Annual Rental Income

Auto-filled from Airbnb estimate

Purchase price
Renovation
Transaction costs
Total investment
Property tax
Insurance
Maintenance
Annual yield
Break-even
5-year return
10-year return
0 yr5101520+

Estimates only. Actual returns depend on rental demand, management quality, renovation scope, and market conditions. Adjust sliders to model scenarios.

Kamisugedacho, Hodogaya Ward, Yokohama City, Kanagawa Prefecture

神奈川県横浜市保土ケ谷区上菅田町

Get Started

Sign in to save properties

Map & Street View

Map loading...

Location Accuracy Notice: Although we try to make the map accurate with coordinates or address details provided, the location data is provided by the agent. This map data should be used as reference for the surrounding area foremost.

Location Type Beds Price Land House View

* Sold properties shown for price comparison only. Prices reflect historical sale data.

Location Type Beds Rent/Month Land House View

* Rental prices shown are monthly rates. Contact property owner for current availability.