Back to results New Build 3LDK House in Kawaguchi, Saitama - 86.94 sqm
Added 7 days ago
¥43,990,000

2-chome, Maekawa, Kawaguchi City, Saitama Prefecture

埼玉県川口市前川2丁目

Buy Move-in Ready Garden House New Build Parking Suburban Stadium

Know someone who would love this? Gift them a subscription

This property has more to show

Earthquake & flood hazard assessment
Purchase cost & tax estimates
Full AI-translated description

Trusted by property buyers worldwide

Start 3-Day Free Trial

$5/month after trial · Cancel anytime

New Construction Detached House in Kawaguchi City, Saitama

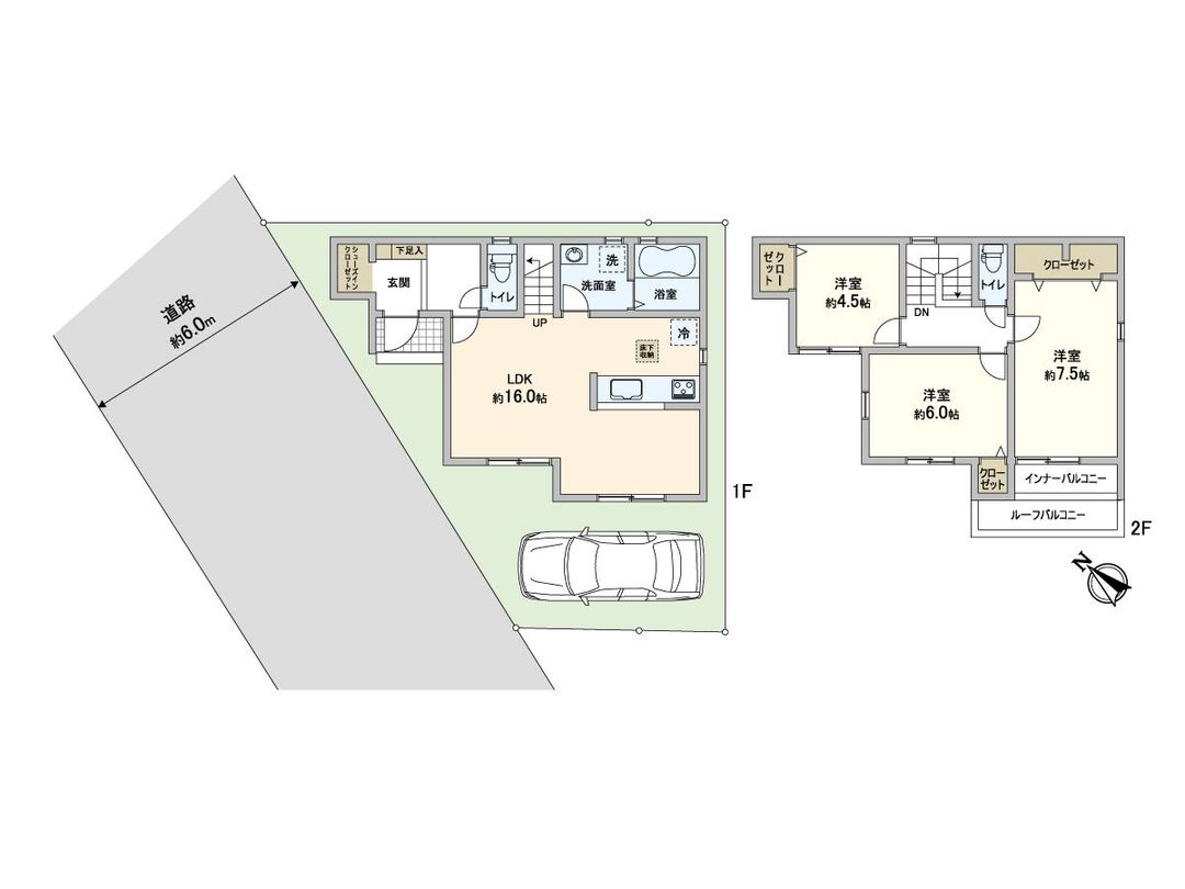
This is a new construction detached house located in Kawaguchi City, Saitama Prefecture. The property is a 2-story wooden structure with a 3LDK layout and a total floor area of 86.94 sqm (approximately 26.29 tsubo). The land area is 87.74 sqm (approximately 26.54 tsubo). The construction is scheduled for completion in April 2026.

The building features include a 2-way type kitchen and washroom designed for efficient household workflow, and a living room staircase intended to foster family communication. Equipment includes underfloor storage and a shoes-in closet. One parking space is available (subject to vehicle type).

Access is via the Saitama Rapid Railway's Araijuku Station, taking 19 minutes by bus to Jizobashi stop, followed by a 6-minute walk. A supermarket is within a 10-minute walk. The property is located within the Shibahigashi Dai-6 Land Readjustment Project area. Special notes indicate the property is in a fire prevention zone, a height control district, and designated under Building Standards Act Article 22.

The property details include a building coverage ratio of 60% and a floor area ratio of 200%. The land use district is Category 1 Residential, and the city planning area is Urbanization Promotion Area. The current land classification is field. The planned handover date is late April 2026 or later.

This description was AI-generated from the original Japanese listing and may contain inaccuracies. Please verify details with the source listing.

Summary

Bedrooms: 3
Parking: 1
Year built: 2026
Land size: 88 / 944sqft
House size: 87 / 936sqft

Short-Term Rental (Minpaku)

Transport

HND

Haneda Airport — 33 km away

Nearest Konbini

sunkus Sunkus — 3 min walk

Internet Connectivity

Natural Hazard Assessment

Hazard data is a subscriber feature

Know the flood, landslide & tsunami risks before you buy

View Plans
¥43,990,000
Purchase Cost & Tax Estimates
Subscribe
Agent fee (3% + tax)¥000,000
Acquisition tax¥000,000
Registration & stamp¥000,000
Property tax (annual)¥00,000/yr
Subscribe to view cost & tax estimates →
Nightly Rate
Occupancy Rate
Max operating days/year
Est. booked nights/year
Gross annual revenue
Expenses breakdown
Cleaning
Platform fees (3%)
Management (20%)
Supplies
Insurance
Utilities
Total expenses
Net annual income
Monthly equivalent

Actual revenue varies by location, property quality, season, and management. Adjust sliders to model different scenarios.

Renovation Budget
Annual Rental Income

Auto-filled from Airbnb estimate

Purchase price
Renovation
Transaction costs
Total investment
Property tax
Insurance
Maintenance
Annual yield
Break-even
5-year return
10-year return
0 yr5101520+

Estimates only. Actual returns depend on rental demand, management quality, renovation scope, and market conditions. Adjust sliders to model scenarios.

2-chome, Maekawa, Kawaguchi City, Saitama Prefecture

埼玉県川口市前川2丁目

Get Started

Sign in to save properties

Map & Street View

Map loading...

Location Accuracy Notice: Although we try to make the map accurate with coordinates or address details provided, the location data is provided by the agent. This map data should be used as reference for the surrounding area foremost.

Location Type Beds Price Land House View

* Sold properties shown for price comparison only. Prices reflect historical sale data.

Location Type Beds Rent/Month Land House View

* Rental prices shown are monthly rates. Contact property owner for current availability.