Back to results New 4LDK House for Sale in Niiza, Saitama - 2026 Build
Added 1 day ago
¥40,800,000

1-chome Nihori, Niiza City, Saitama Prefecture

埼玉県新座市新堀1丁目

Buy Move-in Ready House New Build Parking Suburban Quiet Area

Know someone who would love this? Gift them a subscription

This property has more to show

Earthquake & flood hazard assessment
Purchase cost & tax estimates
Full AI-translated description

Trusted by property buyers worldwide

Start 3-Day Free Trial

$5/month after trial · Cancel anytime

Newly Built 4LDK Detached House in Niiza, Saitama

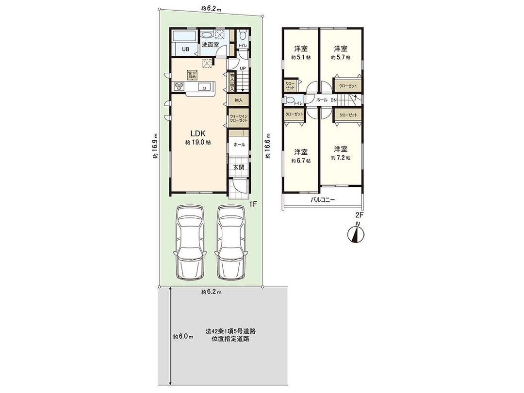
This newly constructed detached house, located in Niiza City, Saitama Prefecture, offers a modern living space with a total floor area of 100.02 sqm (approximately 30.25 tsubo) on a land plot of 104.7 sqm (approximately 31.67 tsubo). The property is situated in a quiet residential neighborhood with a good living environment. Access is provided via an 8-minute bus ride from Seibu Ikebukuro/Toshima Line's Kiyose Station, followed by a 6-minute walk from the Kikou Eisei Center bus stop.

The house features a 4LDK layout, including a spacious 19.0-jo LDK area that provides a sense of openness. The kitchen is a face-to-face style, integrated with the living space. All rooms are equipped with closets or storage spaces, offering ample storage. A unique feature is the connected balcony that allows movement between two rooms. Parking is available for two vehicles (subject to vehicle type). The front road is approximately 6 meters wide, facilitating easier parking maneuvers and contributing to an open feel.

Equipment and features include a bath dryer, double-glazed windows, a TV monitor intercom, 24-hour ventilation, underfloor storage, motion sensors, and a water purifier. The property is within a Category I Low-Rise Exclusive Residential Zone. A special note from the agent states: There may be utility poles and support lines within the residential plot.

The surrounding area offers convenient amenities. A Seven-Eleven convenience store is about a 6-minute walk (470m) away, while the Niiza Municipal Nihori Elementary School is about an 8-minute walk (500m). Larger supermarkets like Seiyu Higashikurume and Maruetsu Higashikurume are within an 18-minute walk (approx. 1400m).

This description was AI-generated from the original Japanese listing and may contain inaccuracies. Please verify details with the source listing.

Summary

Bedrooms: 4
Parking: 2
Year built: 2026
Land size: 105 / 1,127sqft
House size: 100 / 1,077sqft

Short-Term Rental (Minpaku)

Transport

HND

Haneda Airport — 33 km away

Nearby Konbini

Mini Stop Mini Stop — 2 min walk
Seven Eleven Seven Eleven — 8 min walk
Family Mart Family Mart — 10 min walk

Internet Connectivity

Natural Hazard Assessment

Hazard data is a subscriber feature

Know the flood, landslide & tsunami risks before you buy

View Plans
¥40,800,000
Purchase Cost & Tax Estimates
Subscribe
Agent fee (3% + tax)¥000,000
Acquisition tax¥000,000
Registration & stamp¥000,000
Property tax (annual)¥00,000/yr
Subscribe to view cost & tax estimates →
Nightly Rate
Occupancy Rate
Max operating days/year
Est. booked nights/year
Gross annual revenue
Expenses breakdown
Cleaning
Platform fees (3%)
Management (20%)
Supplies
Insurance
Utilities
Total expenses
Net annual income
Monthly equivalent

Actual revenue varies by location, property quality, season, and management. Adjust sliders to model different scenarios.

Renovation Budget
Annual Rental Income

Auto-filled from Airbnb estimate

Purchase price
Renovation
Transaction costs
Total investment
Property tax
Insurance
Maintenance
Annual yield
Break-even
5-year return
10-year return
0 yr5101520+

Estimates only. Actual returns depend on rental demand, management quality, renovation scope, and market conditions. Adjust sliders to model scenarios.

1-chome Nihori, Niiza City, Saitama Prefecture

埼玉県新座市新堀1丁目

Get Started

Sign in to save properties

How It Works

1

Search - Browse properties across Japan

2

Save - Add favorites to your list

3

Contact Teritoru - Click "Get Started" above. Teritoru is our broker partner who will help you contact the selling agent or seller.

Teritoru handles all communication with Japanese agencies on your behalf in English.

Map & Street View

Map loading...

Location Accuracy Notice: Although we try to make the map accurate with coordinates or address details provided, the location data is provided by the agent. This map data should be used as reference for the surrounding area foremost.

Location Type Beds Price Land House View

* Sold properties shown for price comparison only. Prices reflect historical sale data.

Location Type Beds Rent/Month Land House View

* Rental prices shown are monthly rates. Contact property owner for current availability.