Back to results New 4LDK House in Fujisawa, Kanagawa - Completion 2026
Added 7 days ago
¥54,990,000

Honfujisawa 3-chome, Fujisawa, Kanagawa Prefecture

神奈川県藤沢市本藤沢3丁目

Buy Move-in Ready Garden Near Station House New Build Parking Suburban Beach Access

Know someone who would love this? Gift them a subscription

This property has more to show

Earthquake & flood hazard assessment
Purchase cost & tax estimates
Full AI-translated description

Trusted by property buyers worldwide

Start 3-Day Free Trial

$5/month after trial · Cancel anytime

New Construction Detached House in Fujisawa, Kanagawa

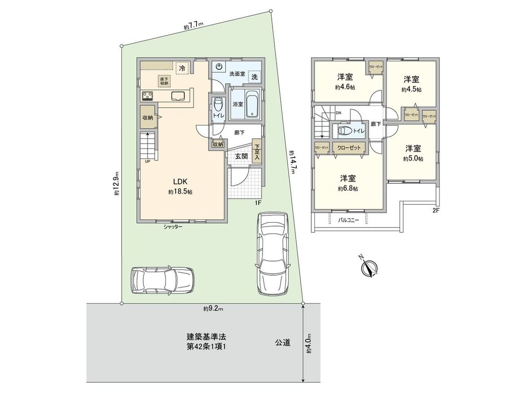
This newly built detached house is located in Honfujisawa 3-chome, Fujisawa City, Kanagawa Prefecture. Scheduled for completion in June 2026, this 2-story wooden structure offers a 4LDK layout with a total floor area of 92.45 sqm (approx. 27.96 tsubo) on a land plot of 116.37 sqm (approx. 35.2 tsubo).

The property features a spacious living room of approximately 18.5 tatami mats. The kitchen is a counter-style, face-to-face design, allowing for conversation while cooking. It is equipped with a faucet-integrated water purifier and a dishwasher. The bathroom is a spacious 1-tsubo unit type with a window for easy ventilation and brightness, and includes a bath ventilation dryer, convenient for laundry on rainy days. The home includes a toilet on both the first and second floors, under-floor storage, and a TV monitor-equipped intercom for visitor convenience.

Parking is available for two cars (subject to vehicle type). The property faces a road on the southwest side, ensuring good sunlight. It is situated in a Category I Low-Rise Exclusive Residential Zone within an urbanization promotion area. The building coverage ratio is 50% and the floor area ratio is 80%.

Access is provided via a 15-minute walk to Fujisawa-Hommachi Station on the Odakyu Enoshima Line or a 17-minute walk to Zengo Station on the same line. The surrounding area offers convenience with FUJI Zengo supermarket approximately 850m away (11-minute walk), Ishiwaradani Park about 500m away (7-minute walk), and various pharmacies and convenience stores within walking distance.

This description was AI-generated from the original Japanese listing and may contain inaccuracies. Please verify details with the source listing.

Summary

Bedrooms: 4
Parking: 2
Year built: 2026
Land size: 116 / 1,253sqft
House size: 92 / 995sqft

Short-Term Rental (Minpaku)

Transport

HND

Haneda Airport — 35 km away

Nearby Konbini

Seven Eleven Seven Eleven — 4 min walk
Family Mart Family Mart — 6 min walk

Internet Connectivity

Natural Hazard Assessment

Hazard data is a subscriber feature

Know the flood, landslide & tsunami risks before you buy

View Plans
¥54,990,000
Purchase Cost & Tax Estimates
Subscribe
Agent fee (3% + tax)¥000,000
Acquisition tax¥000,000
Registration & stamp¥000,000
Property tax (annual)¥00,000/yr
Subscribe to view cost & tax estimates →
Nightly Rate
Occupancy Rate
Max operating days/year
Est. booked nights/year
Gross annual revenue
Expenses breakdown
Cleaning
Platform fees (3%)
Management (20%)
Supplies
Insurance
Utilities
Total expenses
Net annual income
Monthly equivalent

Actual revenue varies by location, property quality, season, and management. Adjust sliders to model different scenarios.

Renovation Budget
Annual Rental Income

Auto-filled from Airbnb estimate

Purchase price
Renovation
Transaction costs
Total investment
Property tax
Insurance
Maintenance
Annual yield
Break-even
5-year return
10-year return
0 yr5101520+

Estimates only. Actual returns depend on rental demand, management quality, renovation scope, and market conditions. Adjust sliders to model scenarios.

Honfujisawa 3-chome, Fujisawa, Kanagawa Prefecture

神奈川県藤沢市本藤沢3丁目

Get Started

Sign in to save properties

Map & Street View

Map loading...

Location Accuracy Notice: Although we try to make the map accurate with coordinates or address details provided, the location data is provided by the agent. This map data should be used as reference for the surrounding area foremost.

Location Type Beds Price Land House View

* Sold properties shown for price comparison only. Prices reflect historical sale data.

Location Type Beds Rent/Month Land House View

* Rental prices shown are monthly rates. Contact property owner for current availability.