Back to results 1975 6DK Wooden House for Sale in Nagasu, Kumamoto

Needs Verification

This listing hasn't been verified recently. Tap to request a priority check!

¥4,000,000

Seigenji, Nagasu Town, Tamana District, Kumamoto Prefecture

熊本県玉名郡長洲町大字清源寺

Buy House Akiya Bank Corner Lot Gas Heating/Cooking Duplex Parking Quiet Area

Know someone who would love this? Gift them a subscription

This property has more to show

Earthquake & flood hazard assessment
Purchase cost & tax estimates
Full AI-translated description

Trusted by property buyers worldwide

Start 3-Day Free Trial

$5/month after trial · Cancel anytime

Spacious 6DK Family Home in Nagasu, Kumamoto

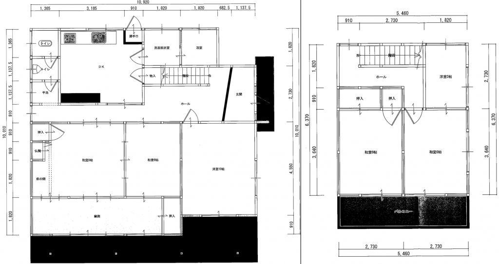
This property, listed as Nagasu Town Akiya Bank No. 10, is a substantial two-story wooden house built in July 1975, offering a generous total floor area of 137.46 square meters on a large 397.46 square meter corner plot. The layout is a spacious 6DK, ideal for multi-generational living or a large family. The property is situated in a quiet, south-facing residential neighborhood and comes with parking space for two or more vehicles. Utilities include city gas.

According to the translated agent notes, the property features a system kitchen, two toilets (one with a reheating function), and a monitor-equipped intercom. The notes specifically highlight that the property is suitable for two-generation households, confirming its potential as a multi-family home. The land is designated as Category 1 Low-Rise Exclusive Residential Zone and is a flat, owned plot. The current status is vacant, and immediate handover is possible.

The property is located in the Seigenji area of Nagasu Town, Kumamoto Prefecture. Nagasu Town is situated along the coast of the Ariake Sea, known for its rich history and traditional festivals. An interesting local fact is that Nagasu is famous for its 'Nagasu Dontaku,' a vibrant festival with roots in the Edo period, featuring lively parades and performances. The closest major landmark is the historic Kumamoto Castle, one of Japan's most impressive feudal castles, located approximately a 40-minute drive away in Kumamoto City.

This description was AI-generated from the original Japanese listing and may contain inaccuracies. Please verify details with the source listing.

Summary

Bedrooms: 6
Parking: 2
Year built: 1975
Land size: 397 / 4,278sqft
House size: 137 / 1,480sqft

Short-Term Rental (Minpaku)

Transport

FUK

Fukuoka Airport — 74 km away

Nearest Konbini

seven_eleven Seven Eleven — 2 min walk

Internet Connectivity

Natural Hazard Assessment

Hazard data is a subscriber feature

Know the flood, landslide & tsunami risks before you buy

View Plans
¥4,000,000
Purchase Cost & Tax Estimates
Subscribe
Agent fee (3% + tax)¥000,000
Acquisition tax¥000,000
Registration & stamp¥000,000
Property tax (annual)¥00,000/yr
Subscribe to view cost & tax estimates →
Nightly Rate
Occupancy Rate
Max operating days/year
Est. booked nights/year
Gross annual revenue
Expenses breakdown
Cleaning
Platform fees (3%)
Management (20%)
Supplies
Insurance
Utilities
Total expenses
Net annual income
Monthly equivalent

Actual revenue varies by location, property quality, season, and management. Adjust sliders to model different scenarios.

Renovation Budget
Annual Rental Income

Auto-filled from Airbnb estimate

Purchase price
Renovation
Transaction costs
Total investment
Property tax
Insurance
Maintenance
Annual yield
Break-even
5-year return
10-year return
0 yr5101520+

Estimates only. Actual returns depend on rental demand, management quality, renovation scope, and market conditions. Adjust sliders to model scenarios.

Seigenji, Nagasu Town, Tamana District, Kumamoto Prefecture

熊本県玉名郡長洲町大字清源寺

Get Started

Sign in to save properties

Map & Street View

Map loading...

Location Accuracy Notice: Although we try to make the map accurate with coordinates or address details provided, the location data is provided by the agent. This map data should be used as reference for the surrounding area foremost.

Location Type Beds Price Land House View

* Sold properties shown for price comparison only. Prices reflect historical sale data.

Location Type Beds Rent/Month Land House View

* Rental prices shown are monthly rates. Contact property owner for current availability.