Verified Listing

This property was checked recently and confirmed to still be available. Tap for details.

Verified Listing

This property has been verified in the last three months. Our system regularly checks listings to ensure they are still available.

Last verified: November 26, 2025

Rent Land Akiya Bank Land Only Near Station Rural

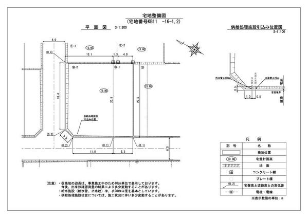
Located in Takata-cho, Rikuzentakata City, Iwate Prefecture, this vacant land property presents an excellent development opportunity. The 449-square-meter plot is situated in a Type 1 residential zone, offering flexibility for various residential constructions. The property is currently undergoing land readjustment project and is designated as a temporary replotting area (KA07 Block, Plot 10).

The location benefits from relatively mild weather throughout the year due to oceanic influences. Following the Great East Japan Earthquake, the area has seen significant redevelopment, including seawall construction and elevation of land. The nearby Miracle Pine Tree and the newly opened Takata-Matsubara Road Station have become local landmarks, bringing new vitality to the area.

The property offers a building coverage ratio of 60% and a floor-area ratio of 200%. It's accessible via the JR Ofunato Line's Rikuzentakata Station (BRT), making it convenient for daily commuting. The land is currently vacant and ready for development, with both purchase and lease options available for consideration.

Summary

Land size: 449 / 4,833sqft

Closest Railway Line / Station:

Ofunato Line / Rikuzentakata (1.22 km)

Nearest konbini:

lawson convenience store Lawson - 12 minute(s) walk

Closest International Airport:

Narita International Airport (NRT) - 378 km away

Contact for Pricing

Tochigasawa, Takata-cho, Rikuzentakata City, Iwate Prefecture

岩手県陸前高田市高田町字栃ヶ沢

Get Started

Sign in to save properties

View Original Listing: Requires subscription. Japanese language usually needed.

Get Started: Book an intro call to begin your property search with an English-speaking broker.

Map & Street View

Map loading...

Location Accuracy Notice: Although we try to make the map accurate with coordinates or address details provided, the location data is provided by the agent. This map data should be used as reference for the surrounding area foremost.

Similar Properties

Rikuzentakata, Iwate Prefecture

Buy Land Land Only Near Station Land Akiya Bank Rural
378m²
lawson convenience store Lawson - 18 min walk

Rikuzentakata, Iwate Prefecture

Rental Land Land Only Near Station Land Akiya Bank Rural
148m²
lawson convenience store Lawson - 18 min walk

Noda, Iwate Prefecture

Rental Land Land Only Near Station Land Corner Lot Rural
341m²
lawson convenience store Lawson - 11 min walk

Rikuzentakata, Iwate Prefecture

Rental Land Seaside Property Land Only Land Akiya Bank Rural
209m²
lawson convenience store Lawson - 25 min walk

Rikuzentakata, Iwate Prefecture

Rental Land Seaside Property Land Only Near Station Land Akiya Bank
463m²
lawson convenience store Lawson - 16 min walk

Rikuzentakata, Iwate Prefecture

Buy Land Seaside Property Land Only Near Station Land Akiya Bank
292m²
lawson convenience store Lawson - 16 min walk

8 views left

Subscribe for unlimited access

Subscribe