Back to results 2023 Built 3LDK Detached House in Sapporo Kitano
Added 4 days ago
¥68,000,000

Kitano Rokujo 1-chome, Shiroishi Ward, Sapporo City, Hokkaido

北海道札幌市清田区北野六条1丁目

Buy Move-in Ready House New Build Corner Lot Modern House Suburban Eco Friendly Stadium

Know someone who would love this? Gift them a subscription

Modern Detached House in Sapporo's Kitano Area

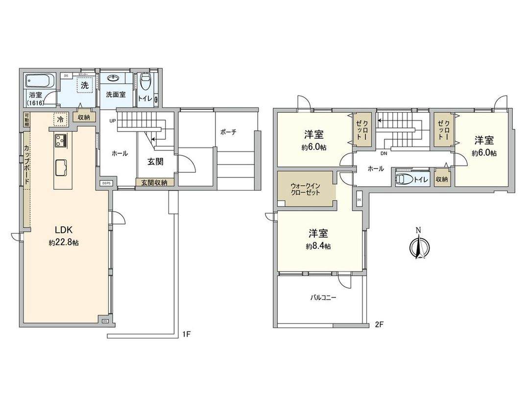
This property is a detached house located in Kitano Rokujo 1-chome, Shiroishi Ward, Sapporo City, Hokkaido. It is a 3LDK layout with a total floor area of 119.75 sqm (approximately 36.22 tsubo) built in October 2023. The land area is 219 sqm (approximately 66.24 tsubo), situated on a corner lot facing north and east.

The house is a model home that has never been occupied. Its concept is a comfortable space where one can feel the changing seasons. It is built to ZEH (Net Zero Energy House) specifications, making it economical for household expenses and environmentally friendly. Construction features include foundation insulation and fire-resistant siding, with a fire-resistant structure that meets enhanced fire safety standards.

The approximately 22.8-jo (38.8 sqm) LDK is spacious. The first floor uses high-quality teak wood. The living room has a cassette-type air conditioner in the ceiling and custom-sized windows. The first-floor terrace, designed to sense light, wind, and greenery, extends the open feeling of the living room. A stable Type 1 ventilation system is installed. Heating and hot water are provided by an Eco-Jose system. Each room has ample storage. The windows feature triple-glazed sashes with excellent insulation. There are toilets on both the first and second floors. The unit bath is approximately 1 tsubo (3.3 sqm) in size. A walk-in closet is included. Parking space for two cars is available (subject to vehicle type).

The front road width is over 6 meters. The property is barrier-free. Equipment includes a dishwasher. The location is within a Category I Low-Rise Exclusive Residential Zone. It is a 13-minute walk from Subway Tozai Line Minami-Gojo 18-chome Station. A supermarket (Co-op Sapporo Lucy) is about a 9-minute walk away, and Kitano Hanazono Park is just an 80-meter (1-minute) walk from the property.

This description was AI-generated from the original Japanese listing and may contain inaccuracies. Please verify details with the source listing.

Summary

Bedrooms: 3
Parking: 2
Year built: 2023
Land size: 219 / 2,357sqft
House size: 120 / 1,289sqft

Short-Term Rental (Minpaku)

Transport

CTS

New Chitose Airport — 35 km away

Nearby Konbini

Seven Eleven Seven Eleven — 4 min walk
Lawson Lawson — 4 min walk
Seicomart Seicomart — 6 min walk

Internet Connectivity

Natural Hazard Assessment

Hazard data is a subscriber feature

Know the flood, landslide & tsunami risks before you buy

View Plans
¥68,000,000

Estimates only. Actual costs vary by property, municipality, and transaction details.

Nightly Rate
Occupancy Rate
Max operating days/year
Est. booked nights/year
Gross annual revenue
Expenses breakdown
Cleaning
Platform fees (3%)
Management (20%)
Supplies
Insurance
Utilities
Total expenses
Net annual income
Monthly equivalent

Actual revenue varies by location, property quality, season, and management. Adjust sliders to model different scenarios.

Renovation Budget
Annual Rental Income

Auto-filled from Airbnb estimate

Purchase price
Renovation
Transaction costs
Total investment
Property tax
Insurance
Maintenance
Annual yield
Break-even
5-year return
10-year return
0 yr5101520+

Estimates only. Actual returns depend on rental demand, management quality, renovation scope, and market conditions. Adjust sliders to model scenarios.

Kitano Rokujo 1-chome, Shiroishi Ward, Sapporo City, Hokkaido

北海道札幌市清田区北野六条1丁目

Get Started

Sign in to save properties

How It Works

1

Search - Browse properties across Japan

2

Save - Add favorites to your list

3

Contact Teritoru - Click "Get Started" above. Teritoru is our broker partner who will help you contact the selling agent or seller.

Teritoru handles all communication with Japanese agencies on your behalf in English.

Map & Street View

Map loading...

Location Accuracy Notice: Although we try to make the map accurate with coordinates or address details provided, the location data is provided by the agent. This map data should be used as reference for the surrounding area foremost.

Location Type Beds Price Land House View

* Sold properties shown for price comparison only. Prices reflect historical sale data.

Location Type Beds Rent/Month Land House View

* Rental prices shown are monthly rates. Contact property owner for current availability.