Back to results Modern 2022-Built Detached House in Fukuoka's Hayashi Ward
Added 2 days ago
¥51,800,000

Iikura 8-chome, Hayashi Ward, Fukuoka City, Fukuoka Prefecture

福岡県福岡市早良区飯倉8丁目

Buy Move-in Ready Garden House New Build Modern House Parking Stadium

Know someone who would love this? Gift them a subscription

This property has more to show

Earthquake & flood hazard assessment
Purchase cost & tax estimates
Full AI-translated description

Trusted by property buyers worldwide

Start 3-Day Free Trial

$5/month after trial · Cancel anytime

Modern Detached House in Fukuoka's Hayashi Ward

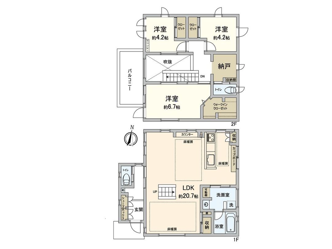
This property is a detached house built in August 2022, offering a modern and comfortable living space. The total floor area is 93.98㎡ (approximately 28.42 tsubo) on a land plot of 111.02㎡ (approximately 33.58 tsubo). The layout is a 3SLDK, where the 'S' denotes a storage/service room.

The building features a bright, open-plan LDK (living, dining, kitchen) area with a high ceiling and a top light, creating a spacious and relaxing atmosphere of approximately 20.7 tatami mats. A living room staircase is designed to foster family communication. The kitchen is a face-to-face style, encouraging conversation, and includes a cupboard on the backside and a separate service entrance. Underfloor heating is installed in the living, dining, and kitchen areas. Each floor has a toilet, and one of the Western-style rooms (approx. 6.7 tatami mats) includes a walk-in closet. A convenient storage room is located on the second floor, and a hand-washing basin is installed in the entranceway. The property can accommodate parking for two standard cars.

The location in Fukuoka City's Hayashi Ward, specifically Iikura 8-chome, offers convenient daily amenities. A supermarket is within a 10-minute walk, and Iihara Central Park is just about 80 meters away (a 1-minute walk). Fukuoka Municipal Iihara Elementary School is approximately 160 meters away (a 2-minute walk). Access to public transport is provided by the Nanakuma Subway Line's Nogomi Station, which is a 21-minute walk.

Agent Notes (Translated from Japanese): We are holding a pre-booked viewing event. As staff are not permanently stationed on-site, please contact us in advance to arrange a convenient date and time for your visit (weekdays are also possible). Our sales staff will provide an explanation of the property. We sincerely look forward to your inquiries. Property Manager: Tsunoda. Property Address: 6-20-5 Iikura 8-chome, Hayashi Ward, Fukuoka City. *Staff are not permanently stationed on-site. If you wish to view the property, please inquire in advance.

This description was AI-generated from the original Japanese listing and may contain inaccuracies. Please verify details with the source listing.

Summary

Bedrooms: 3
Parking: 2
Year built: 2022
Land size: 111 / 1,195sqft
House size: 94 / 1,012sqft

Short-Term Rental (Minpaku)

Transport

FUK

Fukuoka Airport — 10 km away

Nearby Konbini

Seven Eleven Seven Eleven — 6 min walk
Lawson Lawson — 6 min walk

Internet Connectivity

Natural Hazard Assessment

Hazard data is a subscriber feature

Know the flood, landslide & tsunami risks before you buy

View Plans
¥51,800,000
Purchase Cost & Tax Estimates
Subscribe
Agent fee (3% + tax)¥000,000
Acquisition tax¥000,000
Registration & stamp¥000,000
Property tax (annual)¥00,000/yr
Subscribe to view cost & tax estimates →
Nightly Rate
Occupancy Rate
Max operating days/year
Est. booked nights/year
Gross annual revenue
Expenses breakdown
Cleaning
Platform fees (3%)
Management (20%)
Supplies
Insurance
Utilities
Total expenses
Net annual income
Monthly equivalent

Actual revenue varies by location, property quality, season, and management. Adjust sliders to model different scenarios.

Renovation Budget
Annual Rental Income

Auto-filled from Airbnb estimate

Purchase price
Renovation
Transaction costs
Total investment
Property tax
Insurance
Maintenance
Annual yield
Break-even
5-year return
10-year return
0 yr5101520+

Estimates only. Actual returns depend on rental demand, management quality, renovation scope, and market conditions. Adjust sliders to model scenarios.

Iikura 8-chome, Hayashi Ward, Fukuoka City, Fukuoka Prefecture

福岡県福岡市早良区飯倉8丁目

Get Started

Sign in to save properties

Map & Street View

Map loading...

Location Accuracy Notice: Although we try to make the map accurate with coordinates or address details provided, the location data is provided by the agent. This map data should be used as reference for the surrounding area foremost.

Location Type Beds Price Land House View

* Sold properties shown for price comparison only. Prices reflect historical sale data.

Location Type Beds Rent/Month Land House View

* Rental prices shown are monthly rates. Contact property owner for current availability.