Back to results 1LDK Commercial Property in Omihachiman with 5 Parking Spaces

Needs Verification

This listing hasn't been verified recently. Tap to request a priority check!

¥6,600,000

Enmancho, Omihachiman City, Shiga Prefecture

滋賀県近江八幡市円山町

Buy Business House

Know someone who would love this? Gift them a subscription

This property has more to show

Earthquake & flood hazard assessment
Purchase cost & tax estimates
Full AI-translated description

Trusted by property buyers worldwide

Start 3-Day Free Trial

$5/month after trial · Cancel anytime

Commercial Property in Enmancho, Omihachiman

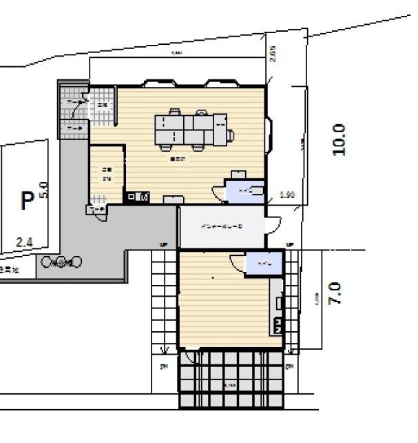
This commercial property in Omihachiman's Enmancho district offers a versatile 1LDK layout with 72.9 square meters of building space on a generous 343.8 square meter lot. Built in 2002, the light steel structure includes five complimentary parking spaces, making it suitable for both residential and commercial use.

The property is situated in Shiga Prefecture's Omihachiman City, known for its well-preserved Edo-period merchant district and traditional canals. The area is famous for Hachimanbori, a historic canal system that was once vital for transporting goods between Kyoto and Edo. The closest major landmark is the UNESCO World Heritage site Enryaku-ji Temple on Mount Hiei, located approximately 30 kilometers away.

This description was AI-generated from the original Japanese listing and may contain inaccuracies. Please verify details with the source listing.

Summary

Parking: 5
Year built: 2002
Land size: 344 / 3,701sqft
House size: 73 / 785sqft

Short-Term Rental (Minpaku)

Transport

Nearby Konbini

Lawson Lawson — 17 min walk
Family Mart Family Mart — 35 min walk
Seven Eleven Seven Eleven — 39 min walk

Internet Connectivity

Natural Hazard Assessment

Hazard data is a subscriber feature

Know the flood, landslide & tsunami risks before you buy

View Plans
¥6,600,000
Purchase Cost & Tax Estimates
Subscribe
Agent fee (3% + tax)¥000,000
Acquisition tax¥000,000
Registration & stamp¥000,000
Property tax (annual)¥00,000/yr
Subscribe to view cost & tax estimates →
Nightly Rate
Occupancy Rate
Max operating days/year
Est. booked nights/year
Gross annual revenue
Expenses breakdown
Cleaning
Platform fees (3%)
Management (20%)
Supplies
Insurance
Utilities
Total expenses
Net annual income
Monthly equivalent

Actual revenue varies by location, property quality, season, and management. Adjust sliders to model different scenarios.

Renovation Budget
Annual Rental Income

Auto-filled from Airbnb estimate

Purchase price
Renovation
Transaction costs
Total investment
Property tax
Insurance
Maintenance
Annual yield
Break-even
5-year return
10-year return
0 yr5101520+

Estimates only. Actual returns depend on rental demand, management quality, renovation scope, and market conditions. Adjust sliders to model scenarios.

Enmancho, Omihachiman City, Shiga Prefecture

滋賀県近江八幡市円山町

Get Started

Sign in to save properties

Map & Street View

Map loading...

Location Accuracy Notice: Although we try to make the map accurate with coordinates or address details provided, the location data is provided by the agent. This map data should be used as reference for the surrounding area foremost.

Location Type Beds Price Land House View

* Sold properties shown for price comparison only. Prices reflect historical sale data.

Location Type Beds Rent/Month Land House View

* Rental prices shown are monthly rates. Contact property owner for current availability.