Back to results 6LDK House in Kawasaki Takatsu, Kanagawa | 139.54 sqm

Verified Listing

This property was checked recently and confirmed to still be available. Tap for details.

Verified Listing

This property has been verified in the last month. Our system regularly checks listings to ensure they are still available.

Last verified: April 10, 2026

¥69,800,000

Suwa 2-chome, Takatsu-ku, Kawasaki, Kanagawa Prefecture

神奈川県川崎市高津区諏訪2丁目

Buy Move-in Ready Near Station House Kotatsu Duplex Renovated

Know someone who would love this? Gift them a subscription

This property has more to show

Earthquake & flood hazard assessment
Purchase cost & tax estimates
Full AI-translated description

Trusted by property buyers worldwide

Start 3-Day Free Trial

$5/month after trial · Cancel anytime

Spacious Two-Generation Home in Kawasaki's Suwa District

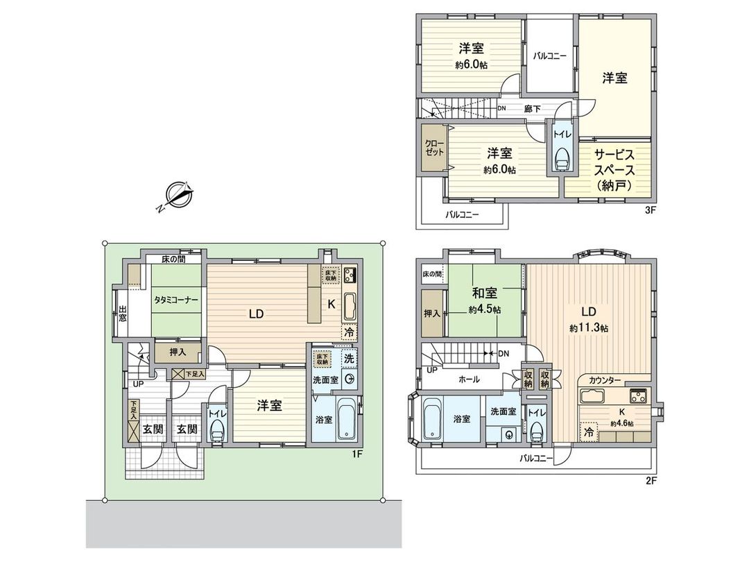
This detached house in Kawasaki's Takatsu Ward offers a versatile living space suitable for a multi-generational family or a single household. The property features a total floor area of 139.54 square meters arranged in a 6LDK layout. The design allows for use as a two-family home or can be easily renovated into a single-family residence.

The house includes several notable features. The second-floor living-dining-kitchen area is equipped with built-in wall speakers. A traditional Japanese-style room contains a sunken kotatsu (heated table). The bathroom is a spacious 1822 size unit. The kitchen is fitted with an electric hanging cupboard.

A comprehensive renovation was completed in March 2016 (Heisei 28). This included replacement of the bathroom, kitchen, toilet, and washbasin vanity. The living-dining room flooring was replaced, and the floors in the kitchen, washroom, and toilet were retiled. The tatami mats, fusuma (sliding doors), and shoji screens were also replaced, and the raised floor section (小上がり) in the Japanese room was refurbished.

The location provides excellent access. Futako-shinchi Station on the Tokyu Den-en-toshi and Oimachi Lines is an 8-minute walk away on a flat route. Futako-tamagawa Station is also within the living sphere at a 17-minute walk, offering access to two train lines. The neighborhood is quiet and residential. Daily amenities are conveniently close, with a supermarket within a 10-minute walk and an elementary school just a 4-minute walk from the property.

This description was AI-generated from the original Japanese listing and may contain inaccuracies. Please verify details with the source listing.

Summary

Bedrooms: 6
Year built: 2001
Land size: 92 / 987sqft
House size: 140 / 1,502sqft

Short-Term Rental (Minpaku)

Transport

HND

Haneda Airport — 15 km away

Nearest Konbini

seven_eleven Seven Eleven — 7 min walk

Internet Connectivity

Natural Hazard Assessment

Hazard data is a subscriber feature

Know the flood, landslide & tsunami risks before you buy

View Plans
¥69,800,000
Purchase Cost & Tax Estimates
Subscribe
Agent fee (3% + tax)¥000,000
Acquisition tax¥000,000
Registration & stamp¥000,000
Property tax (annual)¥00,000/yr
Subscribe to view cost & tax estimates →
Nightly Rate
Occupancy Rate
Max operating days/year
Est. booked nights/year
Gross annual revenue
Expenses breakdown
Cleaning
Platform fees (3%)
Management (20%)
Supplies
Insurance
Utilities
Total expenses
Net annual income
Monthly equivalent

Actual revenue varies by location, property quality, season, and management. Adjust sliders to model different scenarios.

Renovation Budget
Annual Rental Income

Auto-filled from Airbnb estimate

Purchase price
Renovation
Transaction costs
Total investment
Property tax
Insurance
Maintenance
Annual yield
Break-even
5-year return
10-year return
0 yr5101520+

Estimates only. Actual returns depend on rental demand, management quality, renovation scope, and market conditions. Adjust sliders to model scenarios.

Suwa 2-chome, Takatsu-ku, Kawasaki, Kanagawa Prefecture

神奈川県川崎市高津区諏訪2丁目

Get Started

Sign in to save properties

Map & Street View

Map loading...

Location Accuracy Notice: Although we try to make the map accurate with coordinates or address details provided, the location data is provided by the agent. This map data should be used as reference for the surrounding area foremost.

Location Type Beds Price Land House View

* Sold properties shown for price comparison only. Prices reflect historical sale data.

Location Type Beds Rent/Month Land House View

* Rental prices shown are monthly rates. Contact property owner for current availability.