Back to results Vacant House for Sale in Yaizu City, Shizuoka - 5DK, 114.22 sqm
Added 6 days ago
¥2,000,000

Ishizu, Yaizu City, Shizuoka Prefecture

静岡県焼津市石津

Buy Renovation Project House Akiya Bank Needs Renovation Rural

Know someone who would love this? Gift them a subscription

This property has more to show

Earthquake & flood hazard assessment
Purchase cost & tax estimates
Full AI-translated description

Trusted by property buyers worldwide

Start 3-Day Free Trial

$5/month after trial · Cancel anytime

Vacant House in Yaizu City, Shizuoka Prefecture

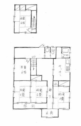
This property is a two-story wooden house located in Yaizu City, Shizuoka Prefecture. It is listed for sale at a price of 2,000,000 yen. The house was built in April 1988, making it approximately 38 years old. The total floor area is 114.22 square meters, and the property sits on a land plot of 189.05 square meters. The interior layout is a 5DK configuration.

According to the agent's special notes, this property requires seismic retrofitting and major repairs. The current condition is vacant, and the handover timing is negotiable. The property is equipped with city gas and is connected to the public sewer system. It features a dedicated bathroom and a dedicated toilet.

The property is situated in a residential area designated for urbanization. Access to public transportation is available via bus, with the "Suijingu-mae" bus stop a 14-minute walk from JR Yaizu Station on the Tokaido Main Line. The neighborhood offers proximity to local amenities, including Yaizu Municipal Hospital approximately 2.6km away, and schools such as Minato Elementary School (700m) and Minato Junior High School (1,000m).

Yaizu City is positioned roughly midway between Tokyo and Nagoya and is known as a fishing town with three ports. The area boasts a mild climate with an average annual temperature of 16.5°C and rare snowfall in winter. The city is noted for its robust child-rearing and medical support systems.

This description was AI-generated from the original Japanese listing and may contain inaccuracies. Please verify details with the source listing.

Summary

Bedrooms: 5
Year built: 1988
Land size: 189 / 2,035sqft
House size: 114 / 1,229sqft

Short-Term Rental (Minpaku)

Transport

Nearby Konbini

Family Mart Family Mart — 26 min walk
Lawson Lawson — 37 min walk

Internet Connectivity

Natural Hazard Assessment

Hazard data is a subscriber feature

Know the flood, landslide & tsunami risks before you buy

View Plans
¥2,000,000
Purchase Cost & Tax Estimates
Subscribe
Agent fee (3% + tax)¥000,000
Acquisition tax¥000,000
Registration & stamp¥000,000
Property tax (annual)¥00,000/yr
Subscribe to view cost & tax estimates →
Nightly Rate
Occupancy Rate
Max operating days/year
Est. booked nights/year
Gross annual revenue
Expenses breakdown
Cleaning
Platform fees (3%)
Management (20%)
Supplies
Insurance
Utilities
Total expenses
Net annual income
Monthly equivalent

Actual revenue varies by location, property quality, season, and management. Adjust sliders to model different scenarios.

Renovation Budget
Annual Rental Income

Auto-filled from Airbnb estimate

Purchase price
Renovation
Transaction costs
Total investment
Property tax
Insurance
Maintenance
Annual yield
Break-even
5-year return
10-year return
0 yr5101520+

Estimates only. Actual returns depend on rental demand, management quality, renovation scope, and market conditions. Adjust sliders to model scenarios.

Ishizu, Yaizu City, Shizuoka Prefecture

静岡県焼津市石津

Get Started

Sign in to save properties

Map & Street View

Map loading...

Location Accuracy Notice: Although we try to make the map accurate with coordinates or address details provided, the location data is provided by the agent. This map data should be used as reference for the surrounding area foremost.

Location Type Beds Price Land House View

* Sold properties shown for price comparison only. Prices reflect historical sale data.

Location Type Beds Rent/Month Land House View

* Rental prices shown are monthly rates. Contact property owner for current availability.